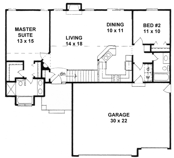
Plan No.354611
Spacious Great Room
Specifications
Total 1164 sq ft
- Main: 1164
- Second: 0
- Third: 0
- Loft/Bonus: 0
- Basement: 1060
- Garage: 660
Rooms
- Beds: 2
- Baths: 2
- 1/2 Bath: 0
- 3/4 Bath: 0
Ceiling Height
- Main: 8'0
- Second:
- Third:
- Loft/Bonus:
- Basement: 8'0
- Garage: 9'4
Details
- Exterior Walls: 2x4
- Garage Type: 3 Car Garage
- Width: 50'0
- Depth: 44'0
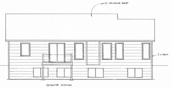
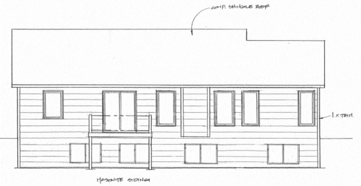
Roof
- Max Ridge Height: 16'0
- Comments: (Main Floor to Peak)
- Primary Pitch: 6/12
- Secondary Pitch: 0/12
Add to Cart
Pricing
– westhomeplanners.com
– westhomeplanners.com
– westhomeplanners.com
[Back to Search Results]

833–493–0942

