Plan No.275090
Rocking Chair Porches
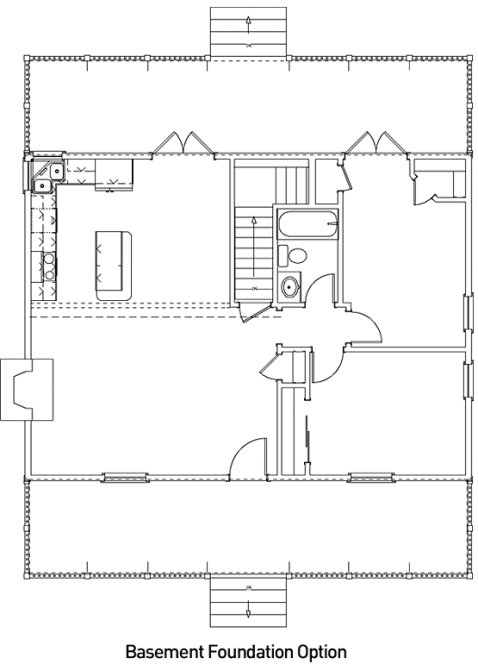
Relax on the rocking chair porches of this 953 sq. ft. retreat. Its two large bedrooms feature oversized closets and convenient access to the hall bath. A vaulted ceiling provides a spacious canopy for the open kitchen and family room with a warm and inviting fireplace. This compact home has everything you'll need to enjoy a vacation getaway. The kitchen has a sunny corner double sink and roomy center island /snack bar. Just off the kitchen are a convenient laundry center and a powder room with direct access from outside, making it perfect for a quick cleanup from outdoor activities before going inside.
Specifications
Total 953 sq ft
- Main: 953
- Second: 0
- Third: 0
- Loft/Bonus: 0
- Basement: 0
- Garage: 0
Rooms
- Beds: 2
- Baths: 1
- 1/2 Bath: 1
- 3/4 Bath: 0
Ceiling Height
- Main: 8'0
- Second:
- Third:
- Loft/Bonus:
- Basement:
- Garage:
Details
- Exterior Walls: 2x4
- Garage Type:
- Width: 36'0
- Depth: 42'4
Roof
- Max Ridge Height: 20'0
- Comments: ()
- Primary Pitch: 6/12
- Secondary Pitch: 0/12
Add to Cart
Pricing
– westhomeplanners.com
– westhomeplanners.com
Opt. Basement Stairs – westhomeplanners.com
– westhomeplanners.com
– westhomeplanners.com
– westhomeplanners.com
[Back to Search Results]

833–493–0942




