Plan No.358121
Compact Yet Spacious Ranch
Specifications
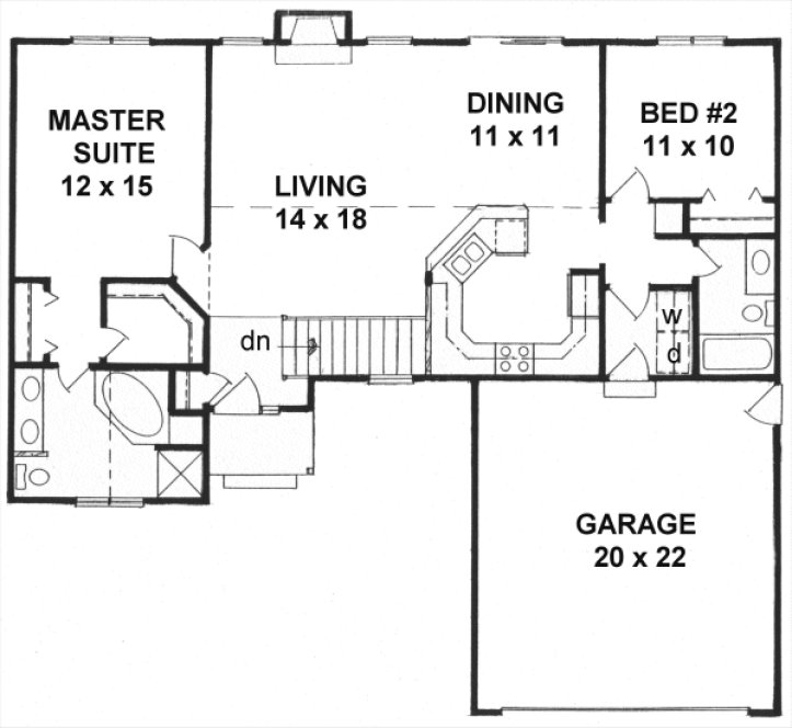
Total 1218 sq ft
- Main: 1218
- Second: 0
- Third: 0
- Loft/Bonus: 0
- Basement: 1112
- Garage: 440
Rooms
- Beds: 2
- Baths: 2
- 1/2 Bath: 0
- 3/4 Bath: 0
Ceiling Height
- Main: 8'0 & 9'0
- Second:
- Third:
- Loft/Bonus:
- Basement: 8'0
- Garage: 9'4
Details
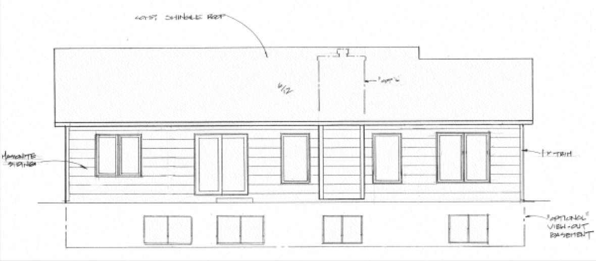
- Exterior Walls: 2x4
- Garage Type: 2 Car Garage
- Width: 50'0
- Depth: 46'0
Roof
- Max Ridge Height: 15'0
- Comments: (Main Floor to Peak)
- Primary Pitch: 6/12
- Secondary Pitch: 8/12
Add to Cart
Pricing
– westhomeplanners.com
– westhomeplanners.com
– westhomeplanners.com
[Back to Search Results]

833–493–0942

