Plan No.188106
Eave Entry Gambrel Roof Garage
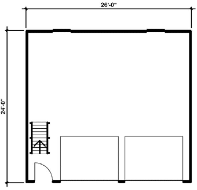
Side stairs lead up to a loft/workshop area. This package contains five different sizes; 24'x26', 24'x28', 24'x30', 24'x32' and 24'x36'.
Specifications
Total 1066 sq ft
- Main: 624
- Second: 0
- Third: 0
- Loft/Bonus: 442
- Basement: 0
- Garage: 0
Rooms
- Beds: 0
- Baths: 0
- 1/2 Bath: 0
- 3/4 Bath: 0
Ceiling Height
- Main:
- Second:
- Third:
- Loft/Bonus:
- Basement:
- Garage:
Details
- Exterior Walls: 2x4
- Garage Type:
- Width: 26'+
- Depth: 24'0"
Roof
- Max Ridge Height:
- Comments: ()
- Primary Pitch: 0/12
- Secondary Pitch: 0/12
Add to Cart
Pricing
– westhomeplanners.com
– westhomeplanners.com
– westhomeplanners.com
[Back to Search Results]

833–493–0942

