Plan No.187160
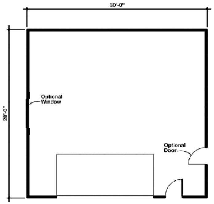
28' Deep Gable &/or Eave Jumbo Garages
This design has a 4/12 pitch gable roof. The package contains four different sizes; 28'x30', 28'x32', 28'x36' and 28'x40'.
Specifications
Total 840 sq ft
- Main: 840
- Second: 0
- Third: 0
- Loft/Bonus: 0
- Basement: 0
- Garage: 0
Rooms
- Beds: 0
- Baths: 0
- 1/2 Bath: 0
- 3/4 Bath: 0
Ceiling Height
- Main:
- Second:
- Third:
- Loft/Bonus:
- Basement:
- Garage:
Details
- Exterior Walls: 2x4
- Garage Type:
- Width: 30'+
- Depth: 28'0
Roof
- Max Ridge Height:
- Comments: ()
- Primary Pitch: 0/12
- Secondary Pitch: 0/12
Add to Cart
Pricing
– westhomeplanners.com
– westhomeplanners.com
[Back to Search Results]

833–493–0942
