Plan No.271131
Compact Ranch
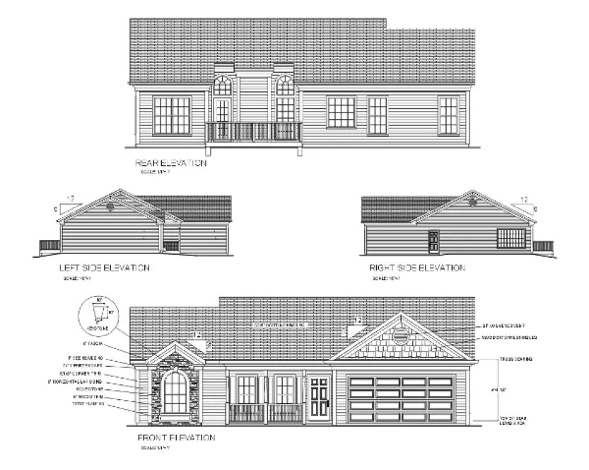
With its front porch, planter, and combination of siding, wood shingles, and stone, this compact ranch is warm and irresistible. With a truss roof system and simple design, this cost-effective plan is perfect for the budget-conscious. Though only 1381 square feet, you'll find a 10'x15' kitchen, a 16'x12' master bedroom, and two spacious secondary bedrooms. Beyond the front porch and through the entry is the family room with a 12' high ceiling. Its focal point is a fireplace with a TV niche above. To the right is the dining room and kitchen. The angled breakfast bar is open to both the family and dining rooms. Other than the family room, all other ceiling heights are 9'. The master suite features his and hers walk-in closets and a full-featured bath including a whirlpool tub and shower. The secondary bedrooms measuring 11'x12'-8" and 11'x12' share the second bath.
Specifications
Total 1381 sq ft
- Main: 1381
- Second: 0
- Third: 0
- Loft/Bonus: 0
- Basement: 0
- Garage: 393
Rooms
- Beds: 3
- Baths: 2
- 1/2 Bath: 0
- 3/4 Bath: 0
Ceiling Height
- Main: 9'0
- Second:
- Third:
- Loft/Bonus:
- Basement:
- Garage: 10'4
Details
- Exterior Walls: 2x4
- Garage Type: doubleGarage
- Width: 50'0
- Depth: 50'4
Roof
- Max Ridge Height: 19'0
- Comments: ()
- Primary Pitch: 6/12
- Secondary Pitch: 0/12

833–493–0942

