Plan No.277021
Versatile and Attractive
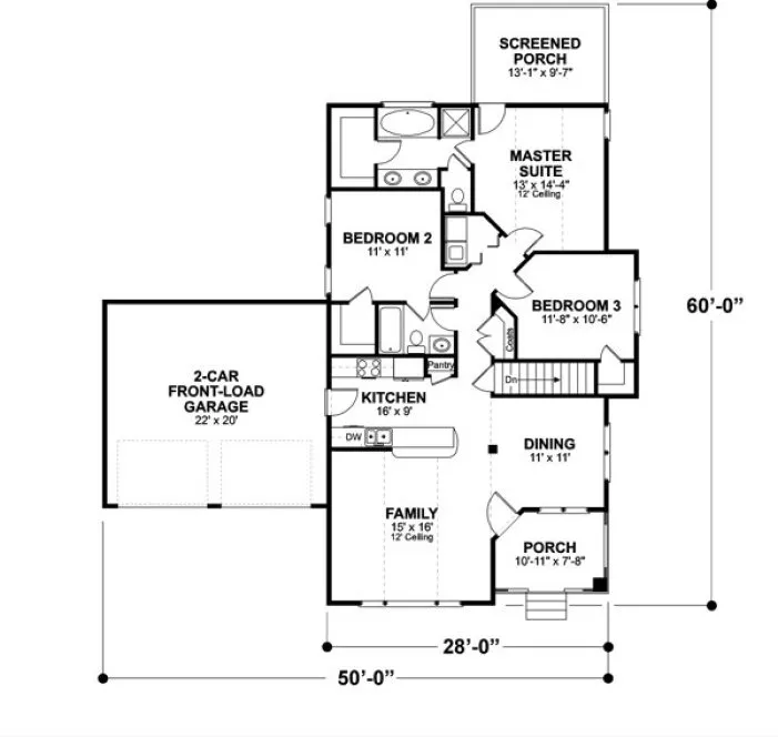
This lovely 1,343 sq. ft. front porch design is as versatile as it is attractive. It makes a perfect starter home or vacation home and lends itself to narrow lots, with a garage which may easily be reduced in size or omitted entirely. The angled entry opens into a spacious open plan including a dramatic vaulted family room lit by a large �Palladian� style window . The master suite is also vaulted, and includes a luxurious bath, walk-in closet and an inviting screened porch. The two remaining bedrooms share a hall bath and each features a walk-in closet. The washer and dryer are tucked conveniently in a laundry closet.
Specifications
Total 1343 sq ft
- Main: 1343
- Second: 0
- Third: 0
- Loft/Bonus: 0
- Basement: 1343
- Garage: 440
Rooms
- Beds: 3
- Baths: 2
- 1/2 Bath: 0
- 3/4 Bath: 0
Ceiling Height
- Main: 9'0
- Second:
- Third:
- Loft/Bonus:
- Basement: 8'0
- Garage: 10'4
Details
- Exterior Walls: 2x4
- Garage Type: doubleGarage
- Width: 50'0
- Depth: 60'0
Roof
- Max Ridge Height:
- Comments: ()
- Primary Pitch: 8/12
- Secondary Pitch: 0/12
Add to Cart
Pricing
– westhomeplanners.com
– westhomeplanners.com
– westhomeplanners.com
[Back to Search Results]

833–493–0942

