Plan No.161063
Garden Breakfast Nook
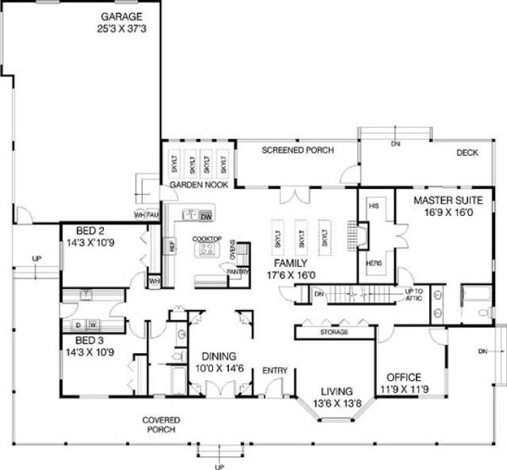
Specifications
Total 2592 sq ft
- Main: 2592
- Second: 0
- Third: 0
- Loft/Bonus: 927
- Basement: 2571
- Garage: 995
Rooms
- Beds: 3
- Baths: 2
- 1/2 Bath: 0
- 3/4 Bath: 0
Ceiling Height
- Main: 8'0
- Second:
- Third:
- Loft/Bonus: 8'0
- Basement: 8'0
- Garage: 9'4
Details
- Exterior Walls: 2x6
- Garage Type: tripleGarage
- Width: 84'0
- Depth: 75'6
Roof
- Max Ridge Height: 23'6
- Comments: ()
- Primary Pitch: 8/12
- Secondary Pitch: 0/12
Add to Cart
Pricing
– westhomeplanners.com
– westhomeplanners.com
– westhomeplanners.com
[Back to Search Results]

833–493–0942

