Plan No.186106
Cape Cod Apartment Garage With One Bedroom
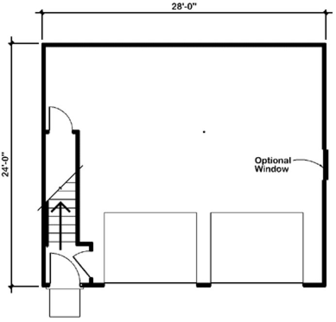
This design has overall dimensions of 24'x28'. Upstairs, there is an attractive 544 sq. ft. apartment. The roof pitch is 12/12 with two dormers. Plans include a floating slab or slab & stem wall foundation option.
Specifications
Total 1216 sq ft
- Main: 672
- Second: 544
- Third: 0
- Loft/Bonus: 0
- Basement: 0
- Garage: 0
Rooms
- Beds: 1
- Baths: 1
- 1/2 Bath: 0
- 3/4 Bath: 0
Ceiling Height
- Main: 8
- Second: 8
- Third:
- Loft/Bonus:
- Basement:
- Garage:
Details
- Exterior Walls: 2x6
- Garage Type:
- Width: 24'0
- Depth: 28'0
Roof
- Max Ridge Height:
- Comments: ()
- Primary Pitch: 0/12
- Secondary Pitch: 0/12
Add to Cart
Pricing
– westhomeplanners.com
– westhomeplanners.com
– westhomeplanners.com
[Back to Search Results]

833–493–0942

