Plan No.169953
Luxurious Master Suite
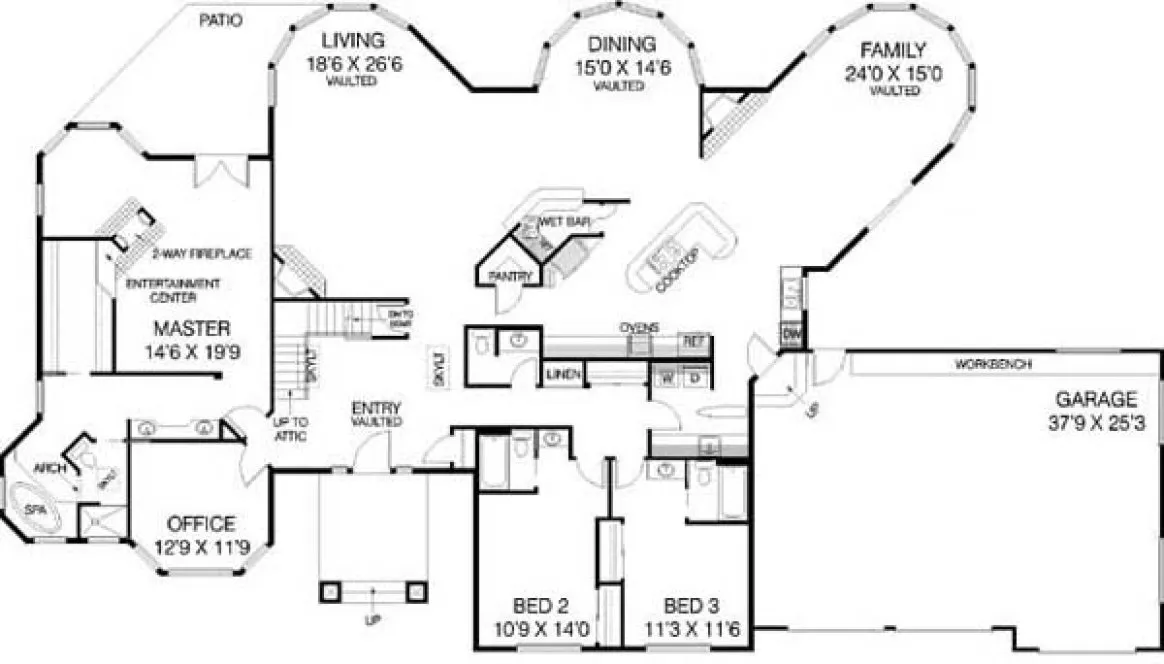
Specifications
Total 3488 sq ft
- Main: 3488
- Second: 0
- Third: 0
- Loft/Bonus: 869
- Basement: 3439
- Garage: 1025
Rooms
- Beds: 3
- Baths: 3
- 1/2 Bath: 1
- 3/4 Bath: 0
Ceiling Height
- Main: 8'0
- Second:
- Third:
- Loft/Bonus: 8'0
- Basement: 8'0
- Garage: 9'4
Details
- Exterior Walls: 2x6
- Garage Type: tripleGarage
- Width: 108'0
- Depth: 60'0
Roof
- Max Ridge Height: 25'11
- Comments: ()
- Primary Pitch: 8/12
- Secondary Pitch: 0/12
Add to Cart
Pricing
– westhomeplanners.com
– westhomeplanners.com
– westhomeplanners.com
[Back to Search Results]

833–493–0942

