Plan No.278122
Country Porch
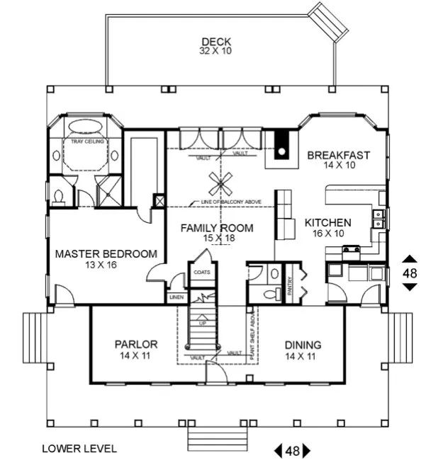
Note: This plan includes a detached garage and breezeway plan with an optional 336 square foot studio and bath above. This up-dated country porch design abounds in exciting features for today's family. This 2239 square foot home provides spaciously sized rooms and includes a detached garage and breezeway plan with a 336 square foot studio and bath above. The stunning exterior with it's wrap-around porch and enormous deck is but a hint of the drama you'll find when you enter. The vaulted open foyer is brightly lit by the large radius window above. The parlor and dining room each measure 14' x 11' and are open to the foyer. The master suite has it's own access to the porch and offers a 6' x 11' walk-in closet and an alluring bath with double vanities and a tray ceiling. The breakfast bar divides the 16' x 11' kitchen and 14' x 10' breakfast room, each featuring brick tile floors. Warming the main living areas is a 3-sided fireplace. A large "Palladian" style window floods the family room with light from the open vaulted area above. Twin double French doors open onto the covered porch and the 32' x 10' deck. Upstairs are two "over-sized" secondary bedrooms each with a walk-in closet. A balcony overlooks the family room below.
Specifications
Total 2239 sq ft
- Main: 1632
- Second: 607
- Third: 0
- Loft/Bonus: 0
- Basement: 0
- Garage: 560
Rooms
- Beds: 3
- Baths: 2
- 1/2 Bath: 1
- 3/4 Bath: 0
Ceiling Height
- Main: 9'0
- Second: 9'0
- Third:
- Loft/Bonus:
- Basement:
- Garage: 9'4
Details
- Exterior Walls: 2x4
- Garage Type:
- Width: 48'0
- Depth: 48'0
Roof
- Max Ridge Height: 27'0
- Comments: ()
- Primary Pitch: 12/12
- Secondary Pitch: 0/12

833–493–0942

