Plan No.185106
Apartment Garage With Two Bedrooms
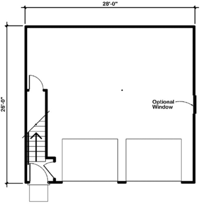
This design has overall dimensions of 26'x28'. There is a 728 sq. ft. apartment above with a 4/12 pitch gable roof. The package contains floating slab or slab & stem wall foundation options.
Specifications
Total 1456 sq ft
- Main: 728
- Second: 728
- Third: 0
- Loft/Bonus: 0
- Basement: 0
- Garage: 0
Rooms
- Beds: 2
- Baths: 1
- 1/2 Bath: 0
- 3/4 Bath: 0
Ceiling Height
- Main: 8'0
- Second: 8'0
- Third:
- Loft/Bonus:
- Basement:
- Garage:
Details
- Exterior Walls: 2x4
- Garage Type:
- Width: 28'0
- Depth: 26'0
Roof
- Max Ridge Height:
- Comments: ()
- Primary Pitch: 4/12
- Secondary Pitch: 0/12
Add to Cart
Pricing
– westhomeplanners.com
– westhomeplanners.com
– westhomeplanners.com
[Back to Search Results]

833–493–0942

