Plan No.143091
Vacation Beach House
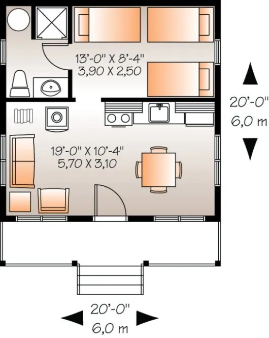
Activity area including kitchenette, table area and a few chairs and also a space for a wood stove. Rest area including shower, simple beds and bunk beds. n order to respect the building code and also meet the multiple needs of our customers, you will have two (2) versions of the cottage design included in your plan. A first version will include an uninsulated and unheated version for seasonal use only (3 seasons). The walls are 2 '' x 4 '', the floor joists are 2 '' x 8 '' and the rafters are 2 '' x 8 '' for the roof. The second version is an isolated and heated version for permanent occupation (4 seasons). For this one the walls are 2 '' x 6 '', the floor joists are 2 '' x 10 '' and the roof is designed with roof trusses. Both versions are provided on screw piles to ensure stability. However we can design other types of foundation for this plan to better suit your needs if necessary. You need simply contact us for details.
Specifications
Total 400 sq ft
- Main: 400
- Second: 0
- Third: 0
- Loft/Bonus: 0
- Basement: 0
- Garage: 0
Rooms
- Beds: 1
- Baths: 1
- 1/2 Bath: 0
- 3/4 Bath: 0
Ceiling Height
- Main: 8'0
- Second:
- Third:
- Loft/Bonus:
- Basement:
- Garage:
Details
- Exterior Walls: 2x6
- Garage Type:
- Width: 20'0
- Depth: 20'0
Roof
- Max Ridge Height: 14'1
- Comments: ()
- Primary Pitch: 0/12
- Secondary Pitch: 0/12

833–493–0942

