Plan No.274181
Luxurious Features
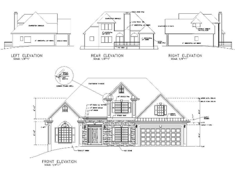
This "European" 1-1/2 story design offers luxurious features in a moderately-sized home. The appealing stucco and cut stone exterior is accented with multi-level trim and copper roofing returns. Careful planning creates a dramatic openness which belies it's compact 1871 square foot interior. Just beyond the beveled glass front door with it's sidelights and transom lies an open foyer which vaults to 18'. To the right is an 11' x 15' dining room with a 4" raised floor surrounded by decorative columns. Just beyond the "bridge" is the 19' x 14' great room with a fireplace centered between two french door units with radius windows above. The master suite vaults to 12' and is brightened by a 6' "Palladian" window. It includes a full-featured vaulted bath and a 6' x 11' closet. The grand 11' x 10' kitchen is lit by twin sky-lights and provides a breakfast bar. There's also a large laundry room with a laundry tub. Lower level rooms which are not vaulted have 9' ceilings. Upstairs, accessed by the "bridge", are the two secondary bedrooms, measuring 10' x 11' and 12' x 12'. A real plus is the optional bedroom 4 suite which enables expansion of this new design to 4 bedrooms and 3 1/2 baths. All upper level rooms have 8' ceilings.
Specifications
Total 1871 sq ft
- Main: 1405
- Second: 466
- Third: 0
- Loft/Bonus: 0
- Basement: 1405
- Garage: 400
Rooms
- Beds: 4
- Baths: 3
- 1/2 Bath: 1
- 3/4 Bath: 0
Ceiling Height
- Main: 9'0
- Second: 8'0
- Third:
- Loft/Bonus:
- Basement: 8'0
- Garage: 10'4
Details
- Exterior Walls: 2x4
- Garage Type: doubleGarage
- Width: 54'0
- Depth: 44'0
Roof
- Max Ridge Height: 26'0
- Comments: ()
- Primary Pitch: 12/12
- Secondary Pitch: 0/12

833–493–0942


