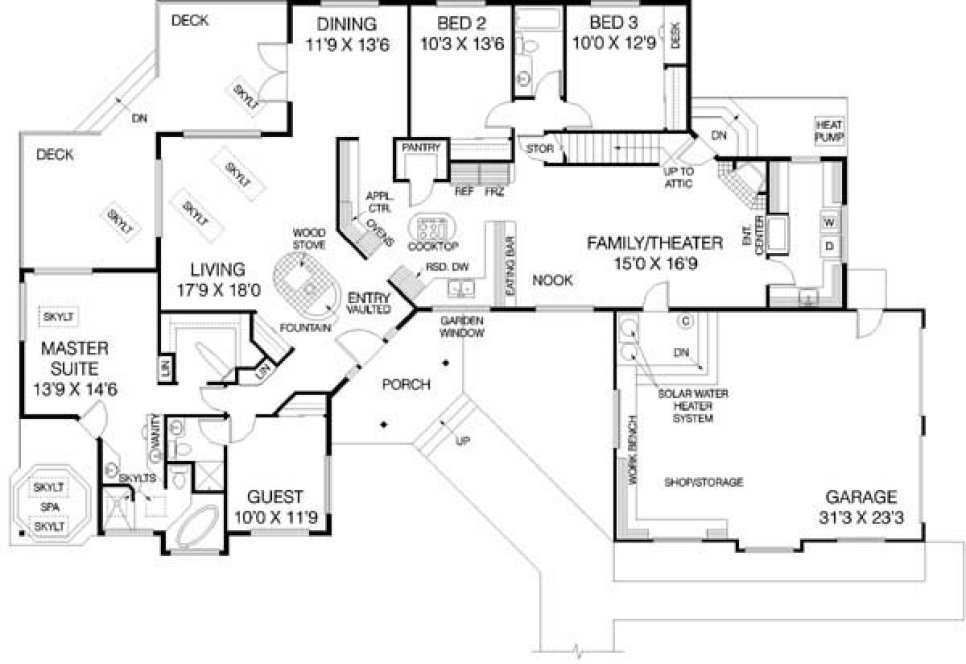
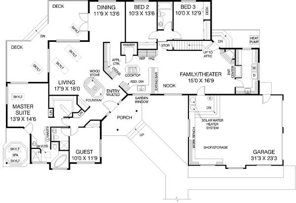
Plan No.165143
Sprawling Rancher
This home features beautiful skylights throughout, a vaulted entry with wood stove and fountain, and a guest suite that could also be used as an in-law suite. The whole family will enjoy living is this unique home.
Specifications
Total 2584 sq ft
- Main: 2584
- Second: 0
- Third: 0
- Loft/Bonus: 500
- Basement: 2584
- Garage: 768
Rooms
- Beds: 4
- Baths: 3
- 1/2 Bath: 0
- 3/4 Bath: 0
Ceiling Height
- Main: 9'0
- Second:
- Third:
- Loft/Bonus: 8'0
- Basement: 8'0
- Garage: 10'4
Details
- Exterior Walls: 2x6
- Garage Type: doubleGarage
- Width: 93'0
- Depth: 57'0
Roof
- Max Ridge Height: 24'9
- Comments: ()
- Primary Pitch: 8/12
- Secondary Pitch: 0/12
Add to Cart
Pricing
– westhomeplanners.com
– westhomeplanners.com
– westhomeplanners.com
[Back to Search Results]

833–493–0942

