Plan No.263291
Floating Library
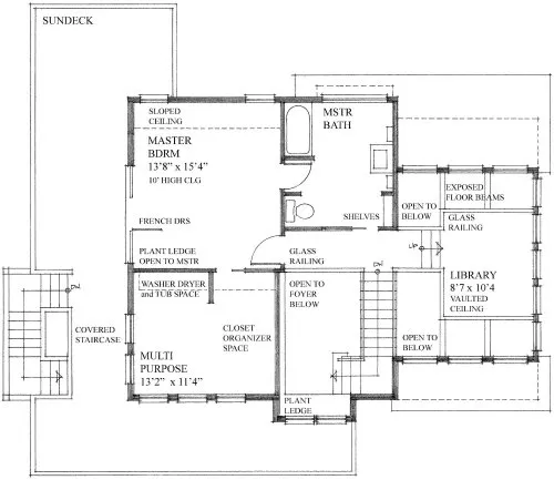
Shingle siding highlighted with fishscales accents and traditional double hung windows borrow from pleasing Craftsman styling while the heavy timber porch and deck framing topped with a clean lined glass railing bring a modern nautical touch to the exterior of this unique home. The main level easily transforms itself into a mother-in-law or private guest suite complete with a separate access. Covered front porches, screened rear porch or the open sundeck on both levels ensures outdoor activities endure regardless of the prevailing weather. The second level is totally dedicated to fulfilling the needs of the vaulted Master Suite part of which is a multi-purpose reading, hobby or exercise room and a massive sundeck. Access to a floating Library overlooking the Living / Dining Room is via a connecting bridge. Glass railings, exposed truss timber framing and floor beams make this a totally special and reflective space.
Specifications
Total 1923 sq ft
- Main: 1169
- Second: 754
- Third: 0
- Loft/Bonus: 0
- Basement: 0
- Garage: 0
Rooms
- Beds: 2
- Baths: 2
- 1/2 Bath: 0
- 3/4 Bath: 0
Ceiling Height
- Main: 8'0
- Second: 8' & 10'
- Third:
- Loft/Bonus:
- Basement:
- Garage:
Details
- Exterior Walls: 2x6
- Garage Type:
- Width: 49'6
- Depth: 43'6
Roof
- Max Ridge Height: 31'6
- Comments: (Main Floor to Peak)
- Primary Pitch: 10/12
- Secondary Pitch: 5/12

833–493–0942











