Plan No.260048
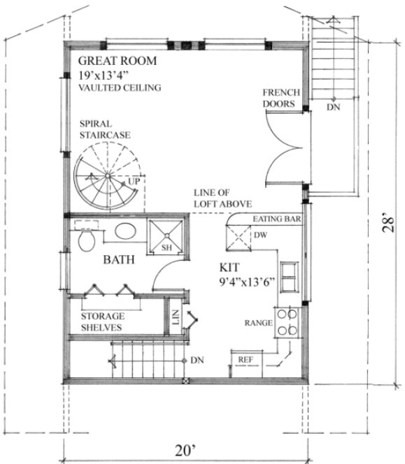
The versatile two storey great room features a window wall enhancing all the available rear views. A spiral staircase helps maximize the living space and adds a charming detail to the living area.
Specifications
Total 840 sq ft
- Main: 560
- Second: 280
- Third: 0
- Loft/Bonus: 0
- Basement: 560
- Garage: 0
Rooms
- Beds: 1
- Baths: 1
- 1/2 Bath: 0
- 3/4 Bath: 0
Ceiling Height
- Main: 8' to 21'
- Second: 3' to 12'
- Third:
- Loft/Bonus:
- Basement: 8'0
- Garage:
Details
- Exterior Walls: 2x6
- Garage Type: singleGarage
- Width: 20'0
- Depth: 28'0
Roof
- Max Ridge Height: 30'0
- Comments: ()
- Primary Pitch: 12/12
- Secondary Pitch: 0/12
Add to Cart
Pricing
– westhomeplanners.com
– westhomeplanners.com
– westhomeplanners.com
Elevations – westhomeplanners.com
[Back to Search Results]

833–493–0942


