Plan No.195018
Old World Charm And Grace With Modern Comforts
This classic design has all the modern comforts. It features a open concept design and secluded main floor master suite. The entry is open to the loft style sitting room above.
Specifications
Total 2370 sq ft
- Main: 1552
- Second: 818
- Third: 0
- Loft/Bonus: 0
- Basement: 1552
- Garage: 0
Rooms
- Beds: 3
- Baths: 3
- 1/2 Bath: 1
- 3/4 Bath: 0
Ceiling Height
- Main: 9'0
- Second: 8'0
- Third:
- Loft/Bonus:
- Basement: 8'0
- Garage:
Details
- Exterior Walls: 2x6
- Garage Type:
- Width: 60'0
- Depth: 44'0
Roof
- Max Ridge Height: 27'0
- Comments: ()
- Primary Pitch: 12/12
- Secondary Pitch: 0/12
Add to Cart
Pricing
Full Rendering – westhomeplanners.com
MAIN Plan – westhomeplanners.com
SECOND Plan – westhomeplanners.com
BASEMENT Plan – westhomeplanners.com
REAR Elevation – westhomeplanners.com
LEFT Elevation – westhomeplanners.com
RIGHT Elevation – westhomeplanners.com
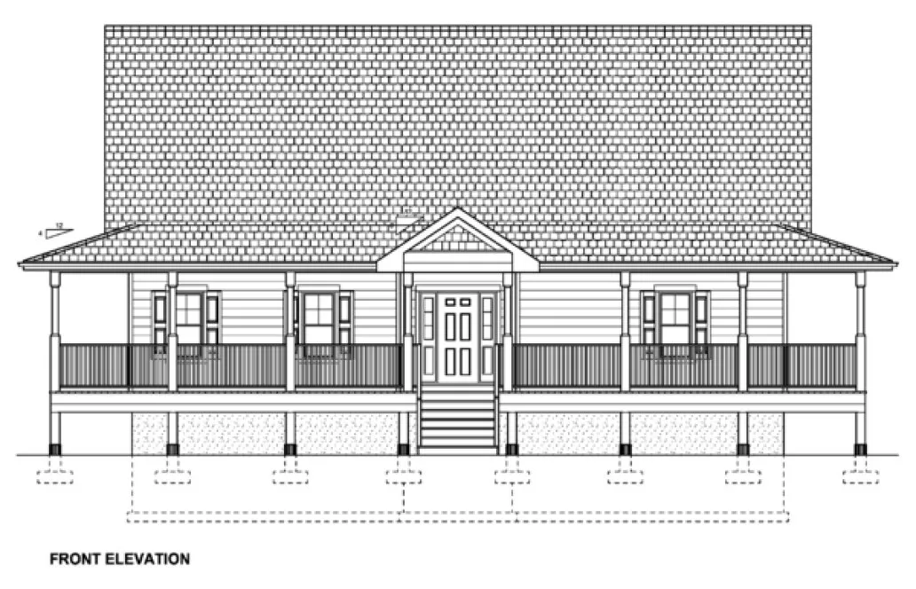
FRONT Elevation – westhomeplanners.com
[Back to Search Results]

833–493–0942






