Plan No.277171
Distinctive Ranch
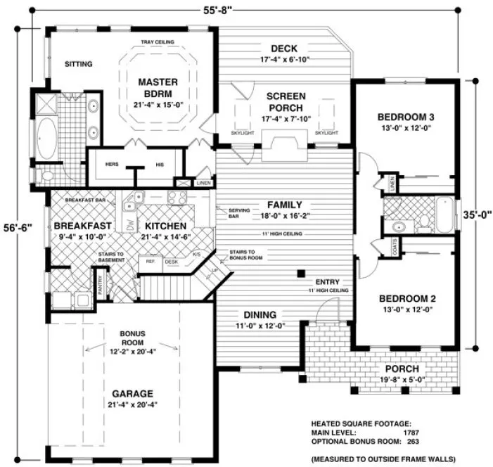
This striking and distinctive ranch includes all the frills. From the inviting front porch to the screen porch and deck, this home provides dramatic spaces, luxurious appointments, and spacious living areas. Its carefully designed 1787 square feet provide the feel and features of a much larger home. The bonus room and basement provide plenty of space for expansion, so this home is one that won't soon be outgrown. Just beyond the porch is an entry with 11' high ceilings. To the left is the dining room open to the entry and family room, also with an 11' high ceiling. Stairs to the bonus room are directly off the family room. The kitchen is open and provides both a breakfast and serving bar. The dramatic master suite is loaded with amenities such as a double step tray ceiling, direct access to the screen porch, a sitting room, deluxe bath, and a "his and hers" walk-in closet. The 13'x12' secondary bedrooms share a second bath. Unless otherwise noted, the ceilings are 9' high. Bonus room adds 263 sq. ft. to total area upon completion.
Specifications
Total 1787 sq ft
- Main: 1787
- Second: 0
- Third: 0
- Loft/Bonus: 0
- Basement: 1787
- Garage: 444
Rooms
- Beds: 3
- Baths: 2
- 1/2 Bath: 0
- 3/4 Bath: 0
Ceiling Height
- Main: 9'0
- Second:
- Third:
- Loft/Bonus:
- Basement: 8'0
- Garage: 10'4
Details
- Exterior Walls: 2x4
- Garage Type: doubleGarage
- Width: 55'8
- Depth: 56'6
Roof
- Max Ridge Height: 22'0
- Comments: ()
- Primary Pitch: 7/12
- Secondary Pitch: 10/12

833–493–0942

