Plan No.218312
Family Design
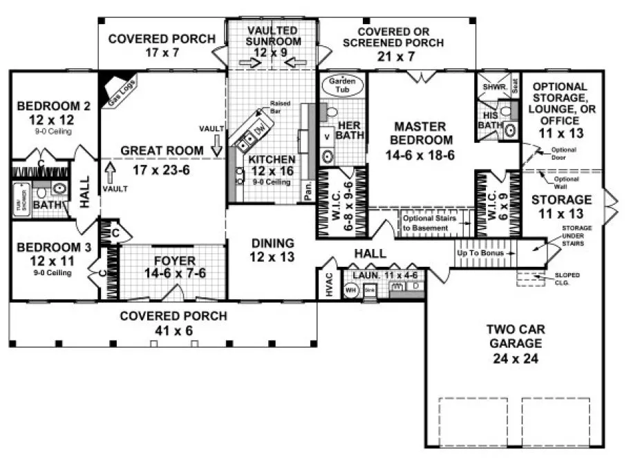
This home meets the current and future needs of your family by offering a design that fits the way that you want to live! Features include three expansive bedrooms and baths, plus an optional Bonus Room which can be modified to meet your specific needs and tastes (i.e. another bedroom, office, kids playroom, guest room, the options are limitless!). Huge walk-in closets in master bedroom. Large great room, and space for that home office that you have always needed. Enjoy your morning coffee on one of the two covered porches or in the breakfast area/sunroom. This house really makes you glad to come home! Bonus room would add 302 sq. ft. to total area upon completion.
Specifications
Total 2138 sq ft
- Main: 2138
- Second: 0
- Third: 0
- Loft/Bonus: 0
- Basement: 2138
- Garage: 570
Rooms
- Beds: 3
- Baths: 3
- 1/2 Bath: 0
- 3/4 Bath: 0
Ceiling Height
- Main: 9'0
- Second:
- Third:
- Loft/Bonus:
- Basement: 8'0
- Garage: 10'4
Details
- Exterior Walls: 2x4
- Garage Type: doubleGarage
- Width: 80'0
- Depth: 57'6
Roof
- Max Ridge Height: 26'4
- Comments: ()
- Primary Pitch: 10/12
- Secondary Pitch: 12/12
Add to Cart
Pricing
– westhomeplanners.com
– westhomeplanners.com
– westhomeplanners.com
– westhomeplanners.com
[Back to Search Results]

833–493–0942


