Plan No.214002
Great Space Planning
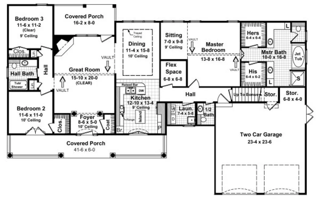
This houseplan includes a variety of popular features including: an open floorplan with split-bedroom layout; expansive master suite wih vaulted ceiling in the master bedroom, a sitting area, large his and her walk-in closets, oversized jet tub, 4' x 4' shower, and plenty of counter space. Great room features vaulted ceiling, includes fireplace, and plenty of light. Kitchen includes a raised bar and an island. Large dining room featuring raised-ceiling and great views into the backyard. The versatility of this plan is further enhanced by a "Flex Space" on the first floor and a "Bonus Room" over the garage. Garage is oversized for full-sized vehicles. Half bath is conveniently located for guests. A good looking house with great space planning!
Specifications
Total 2004 sq ft
- Main: 2004
- Second: 0
- Third: 0
- Loft/Bonus: 0
- Basement: 0
- Garage: 570
Rooms
- Beds: 3
- Baths: 2
- 1/2 Bath: 1
- 3/4 Bath: 0
Ceiling Height
- Main: 9'0
- Second:
- Third:
- Loft/Bonus:
- Basement:
- Garage: 10'4
Details
- Exterior Walls: 2x4
- Garage Type: doubleGarage
- Width: 78'0
- Depth: 49'6
Roof
- Max Ridge Height: 24'10
- Comments: ()
- Primary Pitch: 10/12
- Secondary Pitch: 12/12

833–493–0942


