Plan No.108156
Inviting Entry
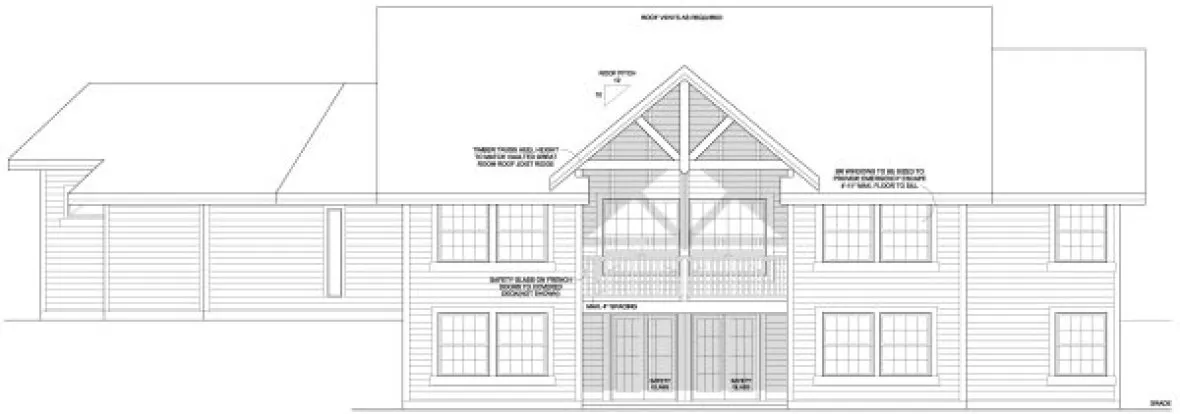
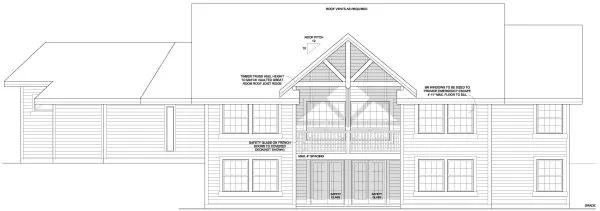
This beautiful and spacious rancher has an inviting entry that will please the senses of family and visitors alike. First, a grand timber-frame entrance porch beckons, and as you step inside the foyer the vaulted ceiling soars to the rear of the Great Room with its large windows to take in the view. The luxurious master suite includes its own fireplace with sitting area and a deluxe 5-piece bathroom and big walk-in closet. The other two bedrooms include ensuite baths and are both above average in size. A gourmet kitchen opens onto a family-sized breakfast room and is convenient to the formal dining room and the service areas of the home. THE MATERIALS LIST IS AVAILABLE FOR THE WALK OUT BASEMENT FOUNDATION ONLY RIGHT READ REVERSE IS ONLY AVAILABLE FOR THE CRAWLSPACE FOUNDATION
Specifications
Total 2162 sq ft
- Main: 2162
- Second: 0
- Third: 0
- Loft/Bonus: 0
- Basement: 0
- Garage: 462
Rooms
- Beds: 3
- Baths: 2
- 1/2 Bath: 1
- 3/4 Bath: 0
Ceiling Height
- Main: 9'0
- Second:
- Third:
- Loft/Bonus:
- Basement:
- Garage: 10'4
Details
- Exterior Walls: 2x6
- Garage Type: doubleGarage
- Width: 84'0
- Depth: 57'0
Roof
- Max Ridge Height: 24'0
- Comments: ()
- Primary Pitch: 10/12
- Secondary Pitch: 0/12

833–493–0942



