Plan No.279112
Sophisticated Southern
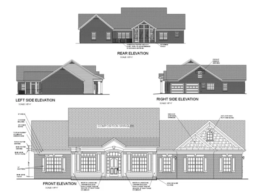
This sophisticated southern country home, with it's updated classic facade and spacious interior design, is both flexible and dramatic. Three full baths, a screened porch and a 379 square foot bonus are just a few of it's irresistible features. The luxurious master suite includes a double tray ceiling, a sitting area, his and hers walk-in closets, and exquisite bath. The 14'-3" x 22'-6" country kitchen is open to the vaulted family room. A French door leads to the vaulted screened porch. The patio or deck is accessible from both the screened porch and master bedroom. A decorative square column and tray ceiling adorn the elegant dining room. Bedrooms two and three each feature walk-in closets and individual baths. An optional basement foundation is available.
Specifications
Total 2184 sq ft
- Main: 2184
- Second: 0
- Third: 0
- Loft/Bonus: 0
- Basement: 2184
- Garage: 508
Rooms
- Beds: 3
- Baths: 3
- 1/2 Bath: 0
- 3/4 Bath: 0
Ceiling Height
- Main: 9'0"
- Second:
- Third:
- Loft/Bonus:
- Basement: 8'0"
- Garage: 10'4"
Details
- Exterior Walls: 2x4
- Garage Type: doubleGarage
- Width: 71'2"
- Depth: 58'1"
Roof
- Max Ridge Height: 24'0"
- Comments: ()
- Primary Pitch: 8/12
- Secondary Pitch: 0/12

833–493–0942

