Plan No.270212
Perfectly Balanced
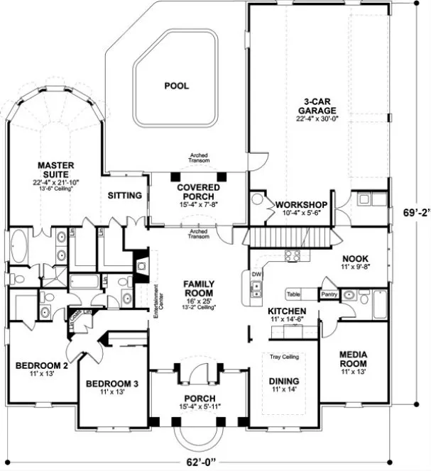
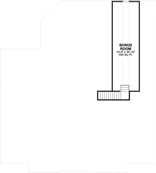
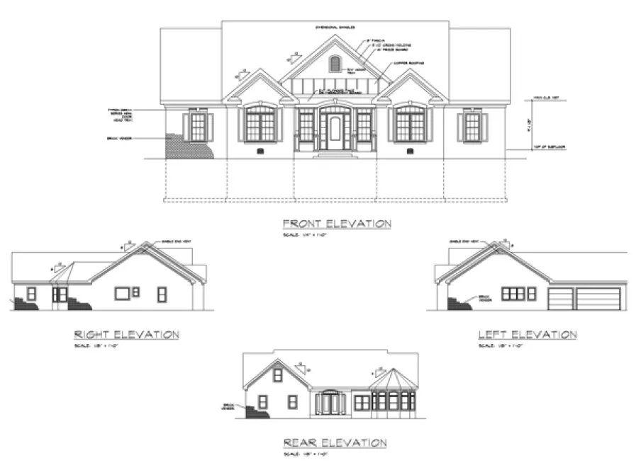
For those who believe beauty is spelled "symmetry", this is your home plan. It is perfectly balanced and has traditional styling. The covered porch entry is finished with siding and shingles which creates a point of interest and a break in the brick which covers the balance of the exterior. Careful examination of this design will reveal an abundance of luxury and convenience features seldom found in a home of this size. The master suite provides a dramatic extended bow window wall with a clear view to the pool. It also offers "his and hers" walk-in closets, a sitting area and direct access to the covered rear porch. Bedrooms 2 & 3 have convenient access to a "Jack and Jill" bath. There is a media room, which could also serve as a 4th bedroom and a bonus room which could serve as a 5th bedroom. There are 3 baths. And, with its basement, there's room for virtually any type of expansion you could imagine. The family room ceiling is apx. 13'-2" high, the master bedroom vaults to apx. 13'-6" and the dining room has a tray ceiling at apx. 10'. Other rooms have 9' ceilings except the bonus which is 8'.
Specifications
Total 2260 sq ft
- Main: 2260
- Second: 0
- Third: 0
- Loft/Bonus: 0
- Basement: 2260
- Garage: 670
Rooms
- Beds: 3
- Baths: 3
- 1/2 Bath: 0
- 3/4 Bath: 0
Ceiling Height
- Main: 9'0
- Second:
- Third:
- Loft/Bonus:
- Basement: 8'0
- Garage: 10'4
Details
- Exterior Walls: 2x4
- Garage Type: tripleGarage
- Width: 62'0
- Depth: 69'2
Roof
- Max Ridge Height: 23'9
- Comments: ()
- Primary Pitch: 8/12
- Secondary Pitch: 10/12

833–493–0942


