Plan No.276141
Perfect for Entertaining
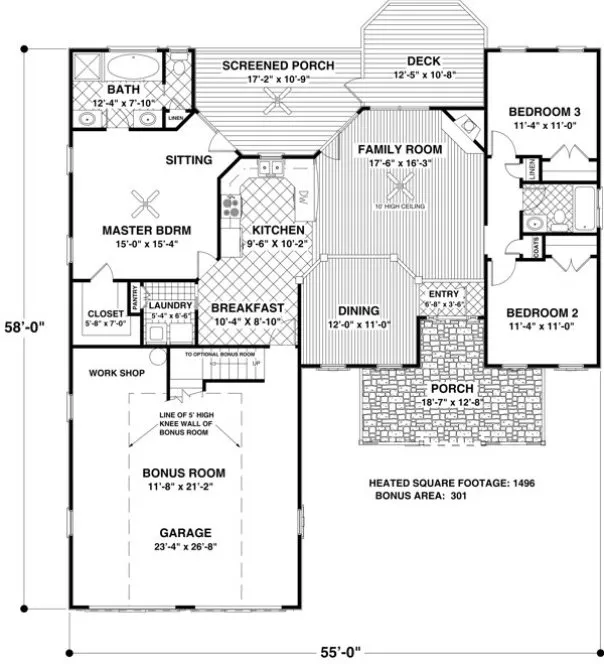
This charming 1,496 sq. ft. country cottage features spacious open rooms and an easy flow from the welcoming stone front porch to the breezy screened porch off the family room and master suite. Perfect for entertaining, the well-appointed kitchen serves a breakfast room as well as a spacious dining room. The family room features a cozy corner fireplace. Isolated from the secondary bedrooms, the master suite is an owner's retreat with a sitting area, large walk-in closet and private bath with separate tub and shower. The secondary bedrooms share a hall bath. A laundry room is conveniently located off the breakfast room. Garage access to a bonus room and a handy workshop complete this delightful design.
Specifications
Total 1496 sq ft
- Main: 1496
- Second: 0
- Third: 0
- Loft/Bonus: 0
- Basement: 0
- Garage: 246
Rooms
- Beds: 3
- Baths: 2
- 1/2 Bath: 0
- 3/4 Bath: 0
Ceiling Height
- Main: 8'0
- Second:
- Third:
- Loft/Bonus:
- Basement:
- Garage: 9'4
Details
- Exterior Walls: 2x4
- Garage Type: doubleGarage
- Width: 55'0
- Depth: 58'0
Roof
- Max Ridge Height: 24'0
- Comments: ()
- Primary Pitch: 8/12
- Secondary Pitch: 10/12
Add to Cart
Pricing
– westhomeplanners.com
– westhomeplanners.com
– westhomeplanners.com
– westhomeplanners.com
– westhomeplanners.com
[Back to Search Results]

833–493–0942



