Plan No.271222
Spectacular Floor Plan
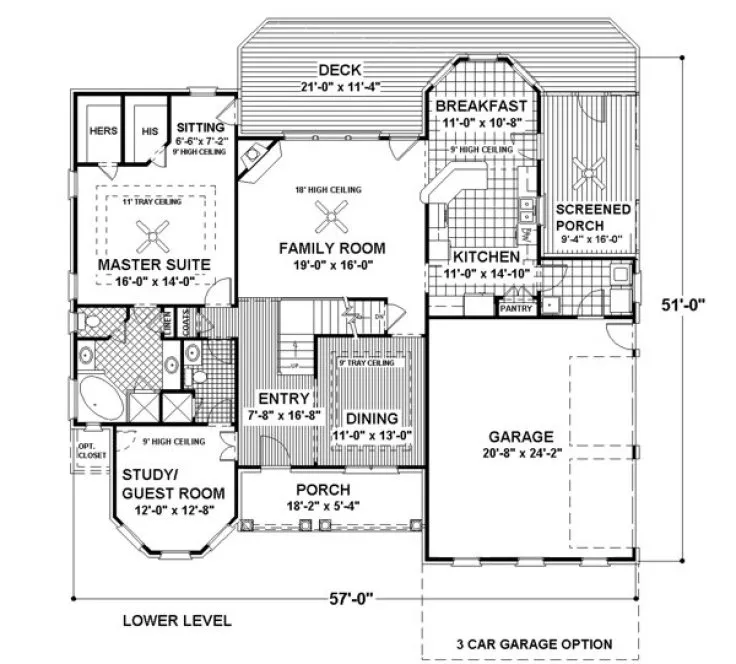
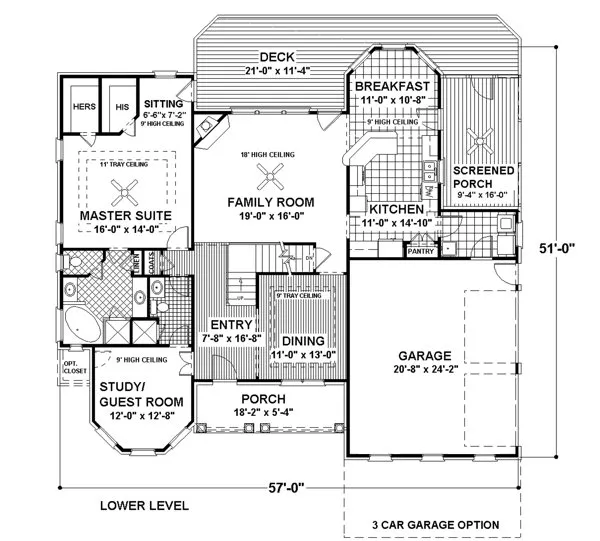
This alluring 1-1/2 story "master-down" blends a spectacular floor plan with a lovely facade to create a home that's simply irresistible. It's efficient design yields spacious rooms and soaring spaces defying its affordable 2253 square foot size. You're welcomed by an inviting front porch, and greeted by a beautiful leaded glass door leading to the 2-story entry. To the right is an elegant dining room adorned with a tray ceiling. Beyond the stairs is the dramatic family room, accented with a corner fireplace and a window wall with arched transoms. The sumptuous master suite includes a double tray ceiling, sitting area and his and hers walk-in closets. The study/guest room provides a flexible space. And, at the end of a long day, the screened porch is the perfect place to relax. Lower level rooms, not vaulted or trayed, have 9' ceilings. The basement provides plenty of storage area and allows for future expansion. Upstairs, are two 11'x14' bedrooms sharing a "Jack & Jill" bath. There's also more flexible space with the large bonus room. All upper level rooms have 8' ceilings.
Specifications
Total 2253 sq ft
- Main: 1719
- Second: 534
- Third: 0
- Loft/Bonus: 0
- Basement: 1719
- Garage: 499
Rooms
- Beds: 4
- Baths: 3
- 1/2 Bath: 0
- 3/4 Bath: 0
Ceiling Height
- Main: 9'0
- Second: 8'0
- Third:
- Loft/Bonus:
- Basement: 8'0
- Garage: 10'4
Details
- Exterior Walls: 2x4
- Garage Type: doubleGarage
- Width: 57'0
- Depth: 51'0
Roof
- Max Ridge Height: 30'6
- Comments: ()
- Primary Pitch: 12/12
- Secondary Pitch: 0/12

833–493–0942


