Plan No.273202
Craftsman Gem
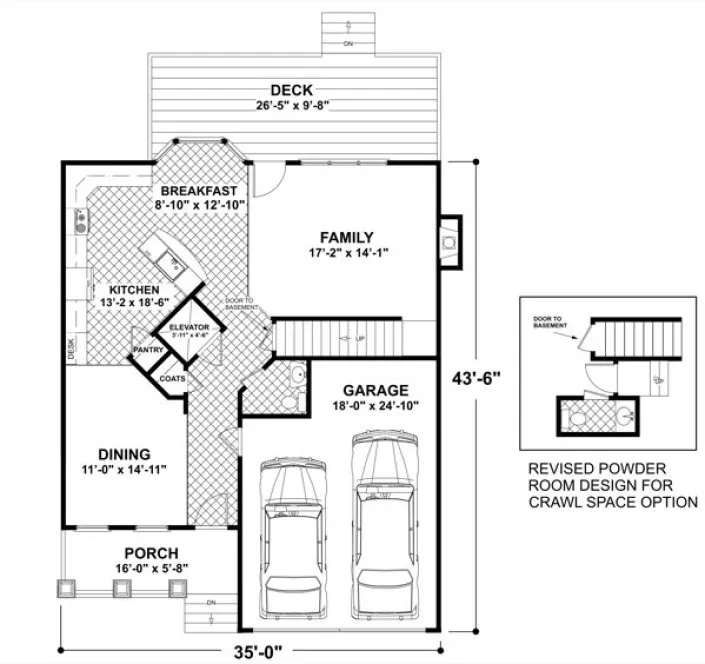
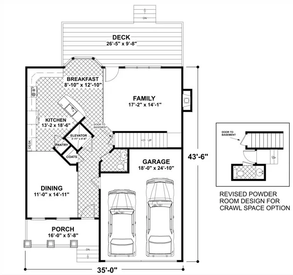
This 2,058 sq. ft. home is a Baby Boomer?s dream! Designed for today?s more narrow lots, this plan enables all bedrooms to be located on the upper level and still be easily accessible. How? A residential elevator, of course! A cheery front porch welcomes you into this Craftsman gem. Leading the way past a spacious dining room, the tile foyer arrives at a powder room, elevator, staircase, family room and sunny breakfast nook & kitchen. The dramatic and spacious kitchen flows neatly from an angled pantry to the recipe desk and serving bar. A gentle ascent aboard the elevator delivers you to the elegant master suite offering an abundance of storage in his-and-hers closets. A quaint sitting area with a balcony is a delightful surprise! With its corner shower, garden tub and separate toilet compartment, this luxurious bath completes the owner?s retreat. Two generous bedrooms sharing a Jack-and-Jill bath and an oversized laundry complete the accommodations of the upper level.
Specifications
Total 2058 sq ft
- Main: 923
- Second: 1135
- Third: 0
- Loft/Bonus: 0
- Basement: 0
- Garage: 447
Rooms
- Beds: 3
- Baths: 0
- 1/2 Bath: 1
- 3/4 Bath: 0
Ceiling Height
- Main: 9'0
- Second: 8'0
- Third:
- Loft/Bonus:
- Basement:
- Garage: 10'4
Details
- Exterior Walls: 2x4
- Garage Type: doubleGarage
- Width: 35'0
- Depth: 43'6
Roof
- Max Ridge Height: 28'11
- Comments: ()
- Primary Pitch: 6/12
- Secondary Pitch: 12/12

833–493–0942


