Plan No.195165
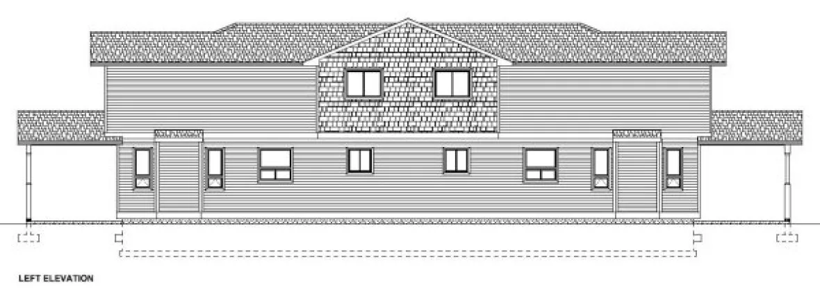
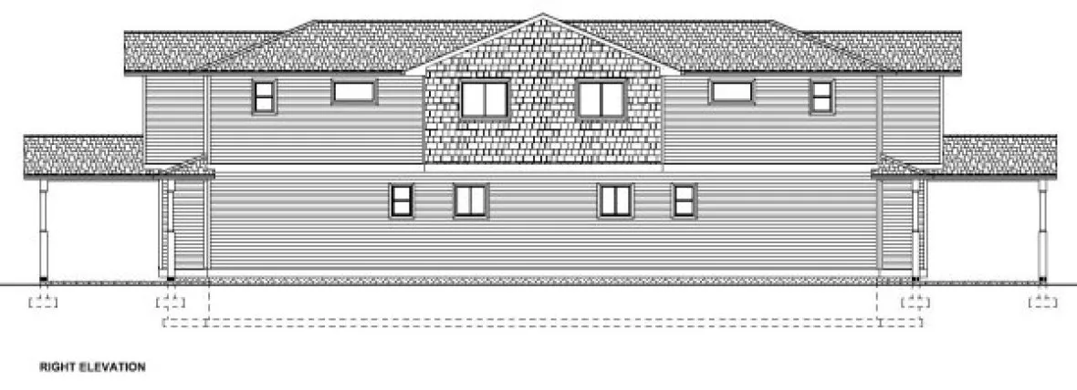
Narrow Lot Duplex
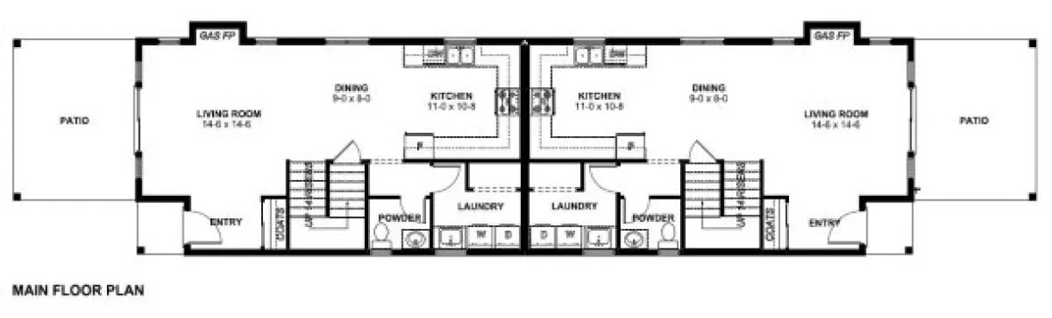
Get the most out of your narrow lot with this craftsman style, three bedroom duplex. This plan features a walk-in closet and en suite in the master bedroom, large secondary bedrooms with extra deep closets, an open living area design, and a functional laundry room. Total Living Area a follows: Main Floor Area - 1410 sq.ft.; Second Floor Area - 1484 sq.ft.
Specifications
Total 2894 sq ft
- Main: 705
- Second: 742
- Third: 0
- Loft/Bonus: 0
- Basement: 0
- Garage: 0
Rooms
- Beds: 3
- Baths: 2
- 1/2 Bath: 1
- 3/4 Bath: 0
Ceiling Height
- Main: 9'0
- Second: 9'0
- Third:
- Loft/Bonus:
- Basement:
- Garage:
Details
- Exterior Walls: 2x6
- Garage Type:
- Width: 20'0
- Depth: 95'0
Roof
- Max Ridge Height: 25'9
- Comments: ()
- Primary Pitch: 5/12
- Secondary Pitch: 0/12
Add to Cart
Pricing
– westhomeplanners.com
– westhomeplanners.com
– westhomeplanners.com
– westhomeplanners.com
– westhomeplanners.com
– westhomeplanners.com
– westhomeplanners.com
[Back to Search Results]

833–493–0942





