Plan No.278171
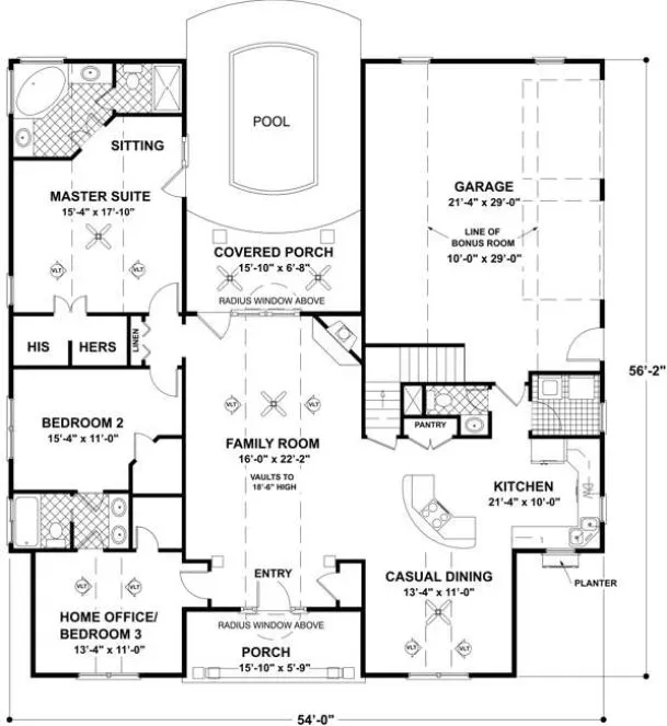
Courtyard With A Pool
The open design, featuring a pool courtyard and numerous vaulted ceilings, makes this home seem huge. The master suite with vaulted ceiling and his and her walk-in closets includes separate access to the courtyard. And bedroom two would make an ideal future suit for in laws with its walk-in closet and bathroom which adjoins a potential sitting room.
Specifications
Total 1798 sq ft
- Main: 1798
- Second: 0
- Third: 0
- Loft/Bonus: 328
- Basement: 0
- Garage: 659
Rooms
- Beds: 3
- Baths: 2
- 1/2 Bath: 1
- 3/4 Bath: 0
Ceiling Height
- Main: 8'0
- Second:
- Third:
- Loft/Bonus: 8'0
- Basement:
- Garage: 8'6
Details
- Exterior Walls: 2x4
- Garage Type: doubleGarage
- Width: 54'0
- Depth: 56'2
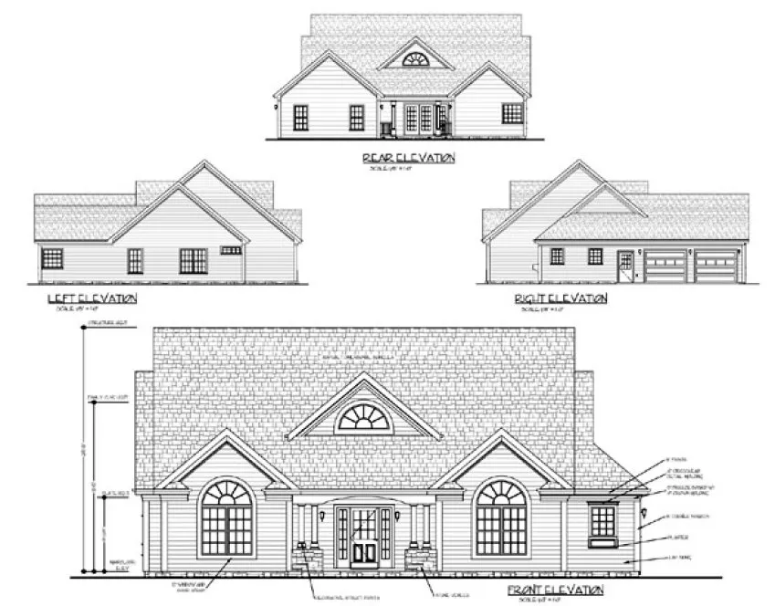
Roof
- Max Ridge Height: 26'8
- Comments: ()
- Primary Pitch: 10/12
- Secondary Pitch: 0/12
Add to Cart
Pricing
– westhomeplanners.com
– westhomeplanners.com
Elevations – westhomeplanners.com
[Back to Search Results]

833–493–0942

