Plan No.271093
Gourmet Kitchen
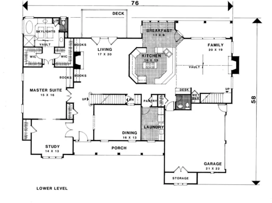
The extra large Kitchen will be enjoyed by the gourmet chef, it opens into a spectacular Family Room with a vaulted ceiling that soars to 18' high at its ridge.
Specifications
Total 3943 sq ft
- Main: 2646
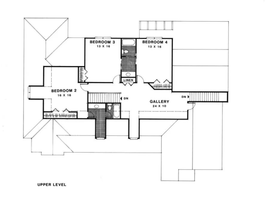
- Second: 1297
- Third: 0
- Loft/Bonus: 0
- Basement: 2646
- Garage: 462
Rooms
- Beds: 4
- Baths: 3
- 1/2 Bath: 1
- 3/4 Bath: 0
Ceiling Height
- Main: 9'0
- Second: 8'0
- Third:
- Loft/Bonus:
- Basement: 8'0
- Garage: 10'4
Details
- Exterior Walls: 2x4
- Garage Type: doubleGarage
- Width: 76'0
- Depth: 58'0
Roof
- Max Ridge Height: 48'0
- Comments: ()
- Primary Pitch: 10/12
- Secondary Pitch: 0/12
Add to Cart
Pricing
– westhomeplanners.com
– westhomeplanners.com
– westhomeplanners.com
[Back to Search Results]

833–493–0942

