Plan No.217052
Flexible Living Space
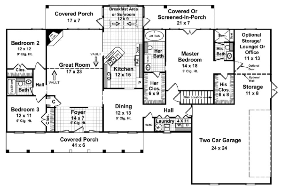
This home features a beautiful traditional styling with the most-popular split bedroom floorplan layout. Plan includes a very flexible and versatile layout which can be built with either 3 / 4 bedrooms and 3 / 3.5 / 4 baths. The well-appointed master suite includes two very large his and her walk-in closets, an oversized jet tub for her, separate shower for him, compartmentalized toilet, dual vanities, and your choice of a covered or screened-in porch! Formal dining room and breakfast area with a sunroom for those family meals. Vaulted ceiling in the expansive great room with popular gas log fireplace. Great views out to the backyard to keep an eye on loved ones. Flexible living space over garage for all those items you just can't seem to throw away. Plenty of storage space for all our toys like boats, jet-skies, golf carts, boat, 4-wheelers, and motorcycles. No matter where you live, you'll love this home!
Specifications
Total 2505 sq ft
- Main: 2100
- Second: 405
- Third: 0
- Loft/Bonus: 0
- Basement: 0
- Garage: 569
Rooms
- Beds: 3
- Baths: 3
- 1/2 Bath: 0
- 3/4 Bath: 0
Ceiling Height
- Main: 9'0
- Second: 8'0
- Third:
- Loft/Bonus:
- Basement:
- Garage: 9'4
Details
- Exterior Walls: 2x4
- Garage Type: doubleGarage
- Width: 79'4
- Depth: 53'6
Roof
- Max Ridge Height: 26'4
- Comments: ()
- Primary Pitch: 10/12
- Secondary Pitch: 12/12

833–493–0942


