Plan No.136349
Elegant Duplex
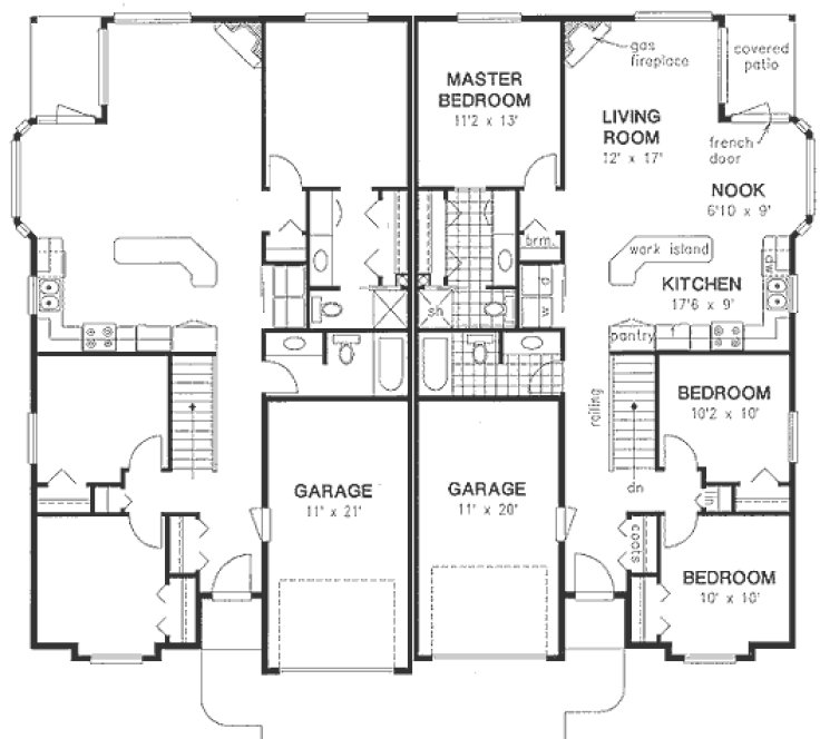
Elegant duplex will be an asset to any neighborhood. Open railed staircase leads to the lower level. Designer kitchen is complete with angled island. Open concept is very appealing. Corner fireplace in living room is viewed from the nook and kitchen. Total - 1224 Sq. Ft. (per unit)
Specifications
Total 2448 sq ft
- Main: 2448
- Second: 0
- Third: 0
- Loft/Bonus: 0
- Basement: 2448
- Garage: 231
Rooms
- Beds: 3
- Baths: 2
- 1/2 Bath: 0
- 3/4 Bath: 0
Ceiling Height
- Main: 8'0"
- Second:
- Third:
- Loft/Bonus:
- Basement: 8'0"
- Garage: 9'4"
Details
- Exterior Walls: 2x6
- Garage Type: singleGarage
- Width: 59'10"
- Depth: 52'4"
Roof
- Max Ridge Height: 17'6"
- Comments: ()
- Primary Pitch: 4/12
- Secondary Pitch: 0/12
Add to Cart
Pricing
– westhomeplanners.com
– westhomeplanners.com
– westhomeplanners.com
[Back to Search Results]

833–493–0942

