Plan No.135349
Timeless Duplex
Efficient u-shaped kitchen. Warming fireplace. Oversized bathtub in main bath. Large closets throughout. Spacious laundry room with laundry tub. Open railed staircase. Total Upper Floor - 1171 Sq. Ft. (per unit)
Specifications
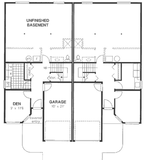
Total 2342 sq ft
- Main: 2342
- Second: 0
- Third: 0
- Loft/Bonus: 0
- Basement: 1867
- Garage: 210
Rooms
- Beds: 3
- Baths: 2
- 1/2 Bath: 0
- 3/4 Bath: 0
Ceiling Height
- Main: 8'0"
- Second:
- Third:
- Loft/Bonus:
- Basement: 8'0"
- Garage: 9'4"
Details
- Exterior Walls: 2x6
- Garage Type: singleGarage
- Width: 50'0"
- Depth: 51'0"
Roof
- Max Ridge Height: 28'10"
- Comments: ()
- Primary Pitch: 6/12
- Secondary Pitch: 0/12
Add to Cart
Pricing
– westhomeplanners.com
– westhomeplanners.com
– westhomeplanners.com
– westhomeplanners.com
[Back to Search Results]

833–493–0942


