Plan No.136249
Traditional Duplex
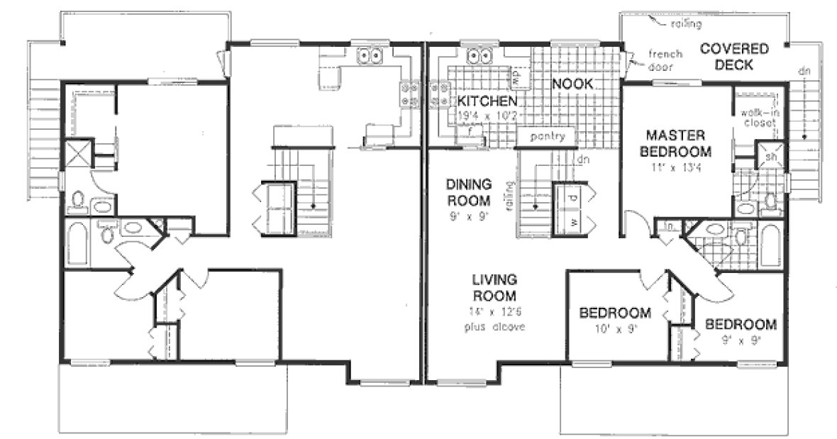
Traditional duplex will be a solid investment for years to come. Spaciousness is increased by the open design of the living and dining rooms which view the railed staircase. Efficient u-shaped kitchen flows into the adjacent breakfast nook. Master bedroom and breakfast nook feature access to the handy covered deck. Total upper floor - 1164 Sq. Ft. (per unit)
Specifications
Total 2328 sq ft
- Main: 2328
- Second: 0
- Third: 0
- Loft/Bonus: 0
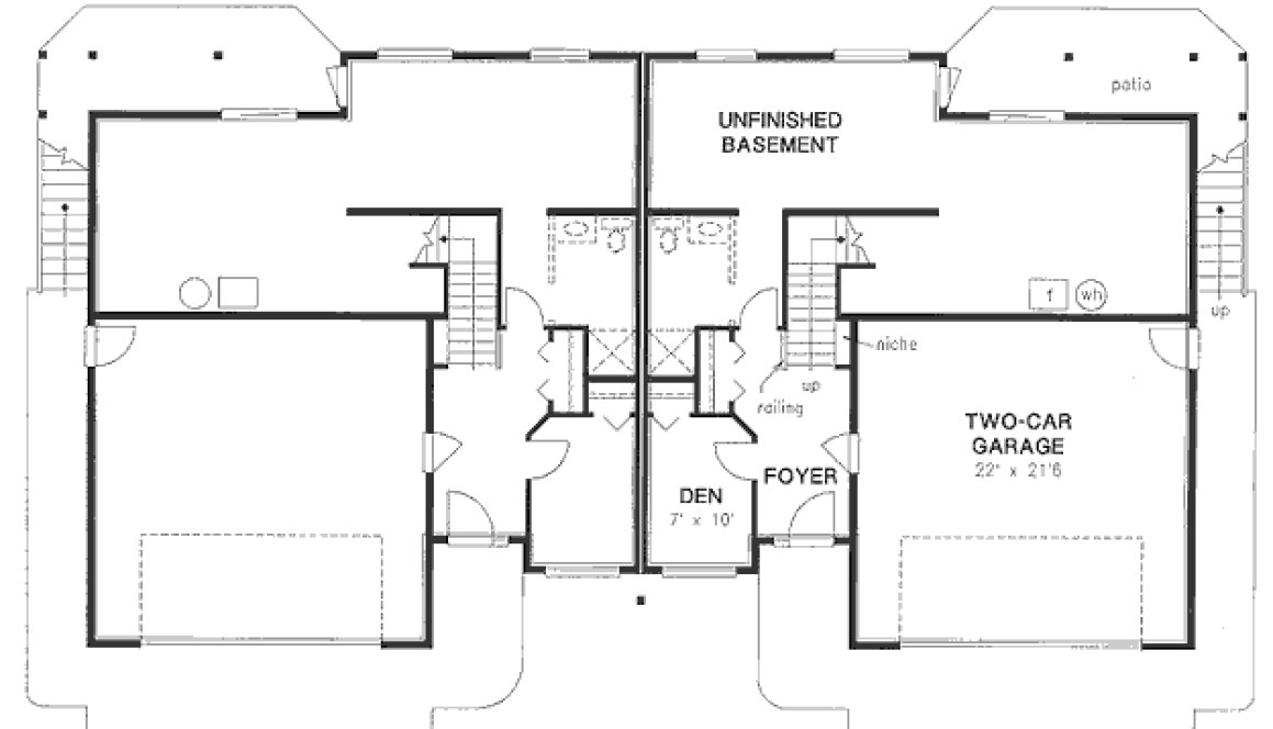
- Basement: 1626
- Garage: 473
Rooms
- Beds: 3
- Baths: 2
- 1/2 Bath: 0
- 3/4 Bath: 0
Ceiling Height
- Main: 8'0"
- Second:
- Third:
- Loft/Bonus:
- Basement: 8'0"
- Garage: 9'4"
Details
- Exterior Walls: 2x6
- Garage Type: doubleGarage
- Width: 73'10"
- Depth: 40'0"
Roof
- Max Ridge Height: 25'10"
- Comments: ()
- Primary Pitch: 6/12
- Secondary Pitch: 0/12
Add to Cart
Pricing
– westhomeplanners.com
– westhomeplanners.com
– westhomeplanners.com
– westhomeplanners.com
[Back to Search Results]

833–493–0942


