Plan No.138239
Spacious Family Home
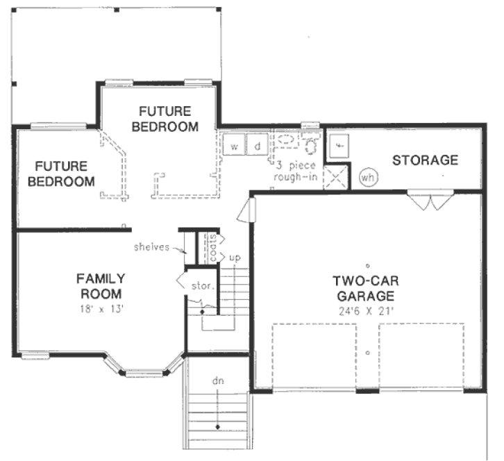
Timeless exterior is featured on this spacious family home. Roomy living room is warmed by the gas fireplace and flows into the adjoining dining room with china cabinet alcove and patio doors to the large sundeck. Kitchen and breakfast nook view the railed staircase. Master bedroom boasts a spacious dressing room and deluxe bath. Lower level may be completed at a later date to reduce building costs. Sundeck increases the overall depth.
Specifications
Total 1387 sq ft
- Main: 1387
- Second: 0
- Third: 0
- Loft/Bonus: 0
- Basement: 909
- Garage: 514
Rooms
- Beds: 3
- Baths: 2
- 1/2 Bath: 0
- 3/4 Bath: 0
Ceiling Height
- Main: 8'0"
- Second:
- Third:
- Loft/Bonus:
- Basement: 8'0"
- Garage: 8'0"
Details
- Exterior Walls: 2x6
- Garage Type: doubleGarage
- Width: 51'0"
- Depth: 33'10"
Roof
- Max Ridge Height: 20'0"
- Comments: ()
- Primary Pitch: 6/12
- Secondary Pitch: 0/12
Add to Cart
Pricing
– westhomeplanners.com
– westhomeplanners.com
– westhomeplanners.com
– westhomeplanners.com
[Back to Search Results]

833–493–0942


