Plan No.139609
Amazing Split-level
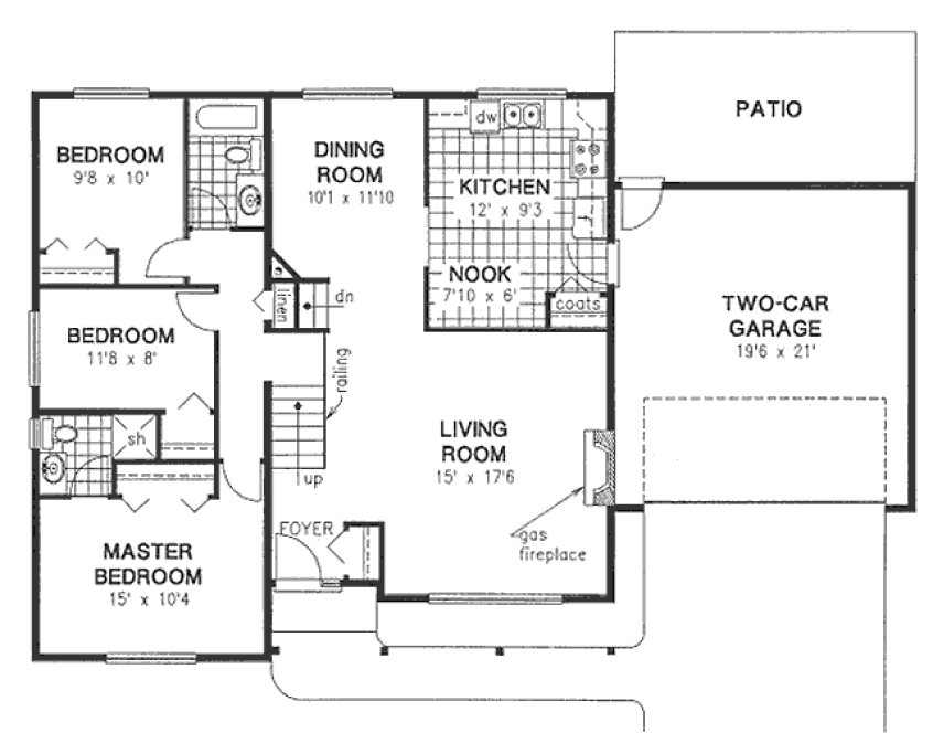
Affordable family home offers a lower floor which may be finished at a later date to reduce building costs. Roomy country kitchen includes a breakfast area and offers direct access into the double garage. Upper hallway views the railed staircase and living room below. Please note that the foundation is half basement, half crawlspace.
Specifications
Total 1383 sq ft
- Main: 1383
- Second: 0
- Third: 0
- Loft/Bonus: 0
- Basement: 576
- Garage: 409
Rooms
- Beds: 3
- Baths: 2
- 1/2 Bath: 0
- 3/4 Bath: 0
Ceiling Height
- Main: 8'0"
- Second:
- Third:
- Loft/Bonus:
- Basement: 8'0"
- Garage:
Details
- Exterior Walls: 2x6
- Garage Type: doubleGarage
- Width: 59'0"
- Depth: 38'0"
Roof
- Max Ridge Height: 15'10"
- Comments: ()
- Primary Pitch: 4/12
- Secondary Pitch: 0/12
Add to Cart
Pricing
– westhomeplanners.com
– westhomeplanners.com
– westhomeplanners.com
– westhomeplanners.com
[Back to Search Results]

833–493–0942


