Plan No.136609
Affordable Family Home
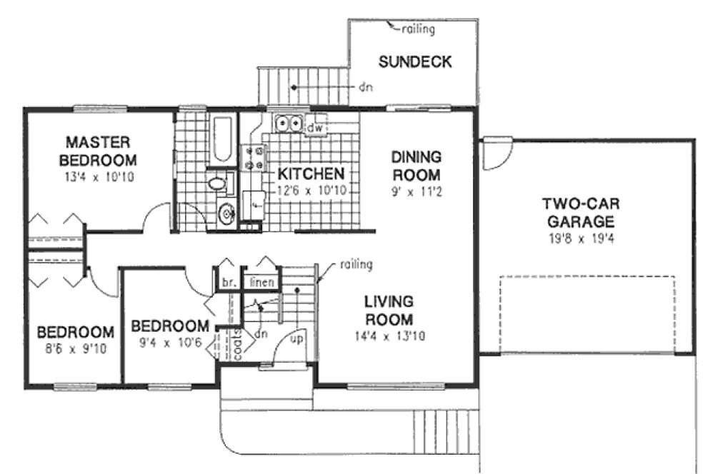
Archtop transom highlights this affordable family home. Bi-level design provides sun-lit lower area. Living room views the staircase and foyer below. Open design of the kitchen and dining room creates a feeling of spaciousness. Master bedroom provides direct access into the main bathroom. Sundeck increases the overall depth.
Specifications
Total 1075 sq ft
- Main: 1075
- Second: 0
- Third: 0
- Loft/Bonus: 0
- Basement: 1075
- Garage: 380
Rooms
- Beds: 3
- Baths: 1
- 1/2 Bath: 0
- 3/4 Bath: 0
Ceiling Height
- Main: 8'0"
- Second:
- Third:
- Loft/Bonus:
- Basement: 8'0"
- Garage: 9'4"
Details
- Exterior Walls: 2x6
- Garage Type: doubleGarage
- Width: 62'0"
- Depth: 26'0"
Roof
- Max Ridge Height: 18'0"
- Comments: ()
- Primary Pitch: 4/12
- Secondary Pitch: 0/12
Add to Cart
Pricing
– westhomeplanners.com
– westhomeplanners.com
– westhomeplanners.com
– westhomeplanners.com
[Back to Search Results]

833–493–0942


