Plan No.133334
Cozy Traditional Exterior
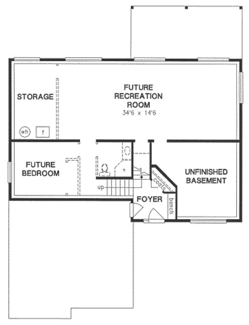
Cozy traditional exterior will be an asset to any neighborhood. Roomy foyer is complete with coat closet and handy bench. Open design of the main living area gives a feeling of spaciousness. Designer kitchen features a large angled island complete with eating bar. Large sundeck enhances summer days. Master bedroom is complete with a walk-in closet and four piece bath. Lower level may be completed at a later date to reduce building costs.
Specifications
Total 1335 sq ft
- Main: 1335
- Second: 0
- Third: 0
- Loft/Bonus: 0
- Basement: 1335
- Garage: 483
Rooms
- Beds: 2
- Baths: 2
- 1/2 Bath: 0
- 3/4 Bath: 0
Ceiling Height
- Main: 8'0"
- Second:
- Third:
- Loft/Bonus:
- Basement: 8'0"
- Garage: 9'4"
Details
- Exterior Walls: 2x6
- Garage Type: doubleGarage
- Width: 45'0"
- Depth: 50'2"
Roof
- Max Ridge Height: 23'6"
- Comments: ()
- Primary Pitch: 8/12
- Secondary Pitch: 0/12
Add to Cart
Pricing
– westhomeplanners.com
– westhomeplanners.com
– westhomeplanners.com
– westhomeplanners.com
[Back to Search Results]

833–493–0942


