Plan No.137924
Classy Design
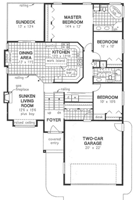
Classy bi-level design will appeal for years to come. Gorgeous kitchen and dining area overlook the sunken living room, with fireplace. Spacious entry from garage is sure to please. Large sundeck is a great spot to spend those long summer days. Master bedroom is complete with a wall of closets and five piece bath. Lower level may be completed at a later date to reduce building costs.
Specifications
Total 1577 sq ft
- Main: 1577
- Second: 0
- Third: 0
- Loft/Bonus: 0
- Basement: 1577
- Garage: 440
Rooms
- Beds: 3
- Baths: 2
- 1/2 Bath: 0
- 3/4 Bath: 0
Ceiling Height
- Main: 8'0"
- Second:
- Third:
- Loft/Bonus:
- Basement: 8'0"
- Garage: 9'4"
Details
- Exterior Walls: 2x6
- Garage Type: doubleGarage
- Width: 41'0"
- Depth: 63'10"
Roof
- Max Ridge Height: 20'6"
- Comments: ()
- Primary Pitch: 6/12
- Secondary Pitch: 0/12
Add to Cart
Pricing
– westhomeplanners.com
– westhomeplanners.com
– westhomeplanners.com
– westhomeplanners.com
[Back to Search Results]

833–493–0942


