Plan No.135319
Compact Two-story Home
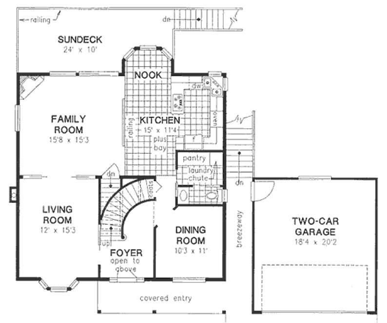
Compact two-story home is designed with a walk-out basement. Elegant foyer, with curved railed staircase, spills into the bayed living room. Efficient kitchen, with corner windows, combines with the breakfast nook and family room to increase interior space. Master retreat includes a private sundeck, walk-in closet and dressing room with vanity. Deluxe main bathroom features a soaking tub and glass shower. Sundeck increases the overall depth.
Specifications
Total 1977 sq ft
- Main: 1059
- Second: 918
- Third: 0
- Loft/Bonus: 0
- Basement: 1059
- Garage: 369
Rooms
- Beds: 3
- Baths: 1
- 1/2 Bath: 1
- 3/4 Bath: 0
Ceiling Height
- Main: 8'0"
- Second: 8'0"
- Third:
- Loft/Bonus:
- Basement: 8'0"
- Garage: 9'4"
Details
- Exterior Walls: 2x6
- Garage Type: doubleGarage
- Width: 55'0"
- Depth: 41'4"
Roof
- Max Ridge Height: 24'6"
- Comments: ()
- Primary Pitch: 5/12
- Secondary Pitch: 0/12
Add to Cart
Pricing
– westhomeplanners.com
– westhomeplanners.com
– westhomeplanners.com
– westhomeplanners.com
[Back to Search Results]

833–493–0942


