Plan No.138119
Cozy Country Home
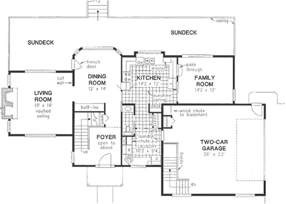
Cozy country home is sure to please. open foyer, with railed staircase, leads to spacious upper areas. Living room features a warming fireplace and vaulted ceilings. Direct access to the sundeck is provided from the dining room and family room. Luxurious master suite boasts a four piece bath and walk-in closet. Sundeck increases the overall depth. Additional ceiling height information: Living Room - 10'0", Foyer - 16'10", Master Bedroom - 11'7" at entrance, sloping down to exterior.
Specifications
Total 2341 sq ft
- Main: 1232
- Second: 1109
- Third: 0
- Loft/Bonus: 0
- Basement: 1232
- Garage: 598
Rooms
- Beds: 4
- Baths: 2
- 1/2 Bath: 1
- 3/4 Bath: 0
Ceiling Height
- Main: 8'0"
- Second: 8'0"
- Third:
- Loft/Bonus:
- Basement: 8'0"
- Garage: 9'4"
Details
- Exterior Walls: 2x6
- Garage Type: doubleGarage
- Width: 66'10"
- Depth: 38'10"
Roof
- Max Ridge Height: 24'10"
- Comments: ()
- Primary Pitch: 6/12
- Secondary Pitch: 0/12
Add to Cart
Pricing
– westhomeplanners.com
– westhomeplanners.com
– westhomeplanners.com
– westhomeplanners.com
[Back to Search Results]

833–493–0942


