Plan No.195107
Back to Back Duplex
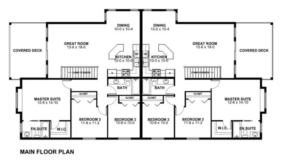
This back to back basement entry duplex is ideal for any family, with ample living space, four large bedrooms, and a den. The large covered deck is excellent for entertaining guests, and the covered porch at the entry adds charm to this craftsman style duplex.
Specifications
Total 4078 sq ft
- Main: 1244
- Second: 0
- Third: 0
- Loft/Bonus: 0
- Basement: 795
- Garage: 440
Rooms
- Beds: 4
- Baths: 3
- 1/2 Bath: 0
- 3/4 Bath: 0
Ceiling Height
- Main: 9'0
- Second:
- Third:
- Loft/Bonus:
- Basement: 9'0
- Garage: 10'4
Details
- Exterior Walls: 2x6
- Garage Type: singleGarage
- Width: 40'0
- Depth: 81'3
Roof
- Max Ridge Height: 29'2
- Comments: ()
- Primary Pitch: 6/12
- Secondary Pitch: 0/12
Add to Cart
Pricing
– westhomeplanners.com
– westhomeplanners.com
– westhomeplanners.com
– westhomeplanners.com
– westhomeplanners.com
[Back to Search Results]

833–493–0942



