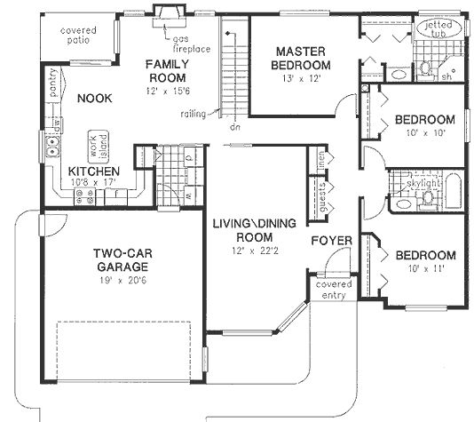
Plan No.138349
Specifications
Total 1571 sq ft
- Main: 1571
- Second: 0
- Third: 0
- Loft/Bonus: 0
- Basement: 1571
- Garage: 389
Rooms
- Beds: 3
- Baths: 2
- 1/2 Bath: 0
- 3/4 Bath: 0
Ceiling Height
- Main: 8'0'
- Second:
- Third:
- Loft/Bonus:
- Basement: 8'0"
- Garage: 8'4"
Details
- Exterior Walls: 2x6
- Garage Type: doubleGarage
- Width: 51'6"
- Depth: 45'4"
Roof
- Max Ridge Height: 17'8"
- Comments: ()
- Primary Pitch: 6/12
- Secondary Pitch: 0/12
Add to Cart
Pricing
– westhomeplanners.com
– westhomeplanners.com
– westhomeplanners.com
[Back to Search Results]

833–493–0942

