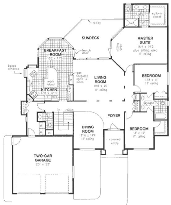
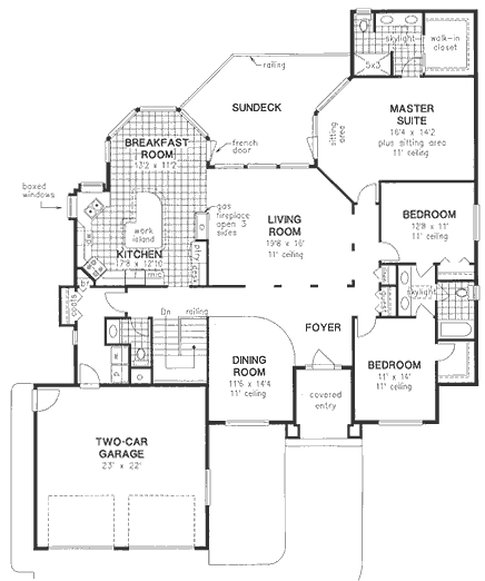
Plan No.137239
Additional ceiling height notes: Kitchen - 9'0" Living Room, Dining Room, Bedrooms - 11'0"
Specifications
Total 2308 sq ft
- Main: 2308
- Second: 0
- Third: 0
- Loft/Bonus: 0
- Basement: 2308
- Garage: 506
Rooms
- Beds: 3
- Baths: 2
- 1/2 Bath: 1
- 3/4 Bath: 0
Ceiling Height
- Main: 8'0"
- Second:
- Third:
- Loft/Bonus:
- Basement: 8'0"
- Garage: 9'4"
Details
- Exterior Walls: 2x6
- Garage Type: doubleGarage
- Width: 60'10"
- Depth: 74'4"
Roof
- Max Ridge Height: 22'8"
- Comments: ()
- Primary Pitch: 8/12
- Secondary Pitch: 0/12
Add to Cart
Pricing
– westhomeplanners.com
– westhomeplanners.com
– westhomeplanners.com
[Back to Search Results]

833–493–0942

