Plan No.262862
Six Bedroom Lodge
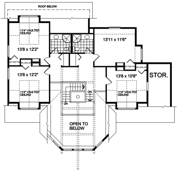
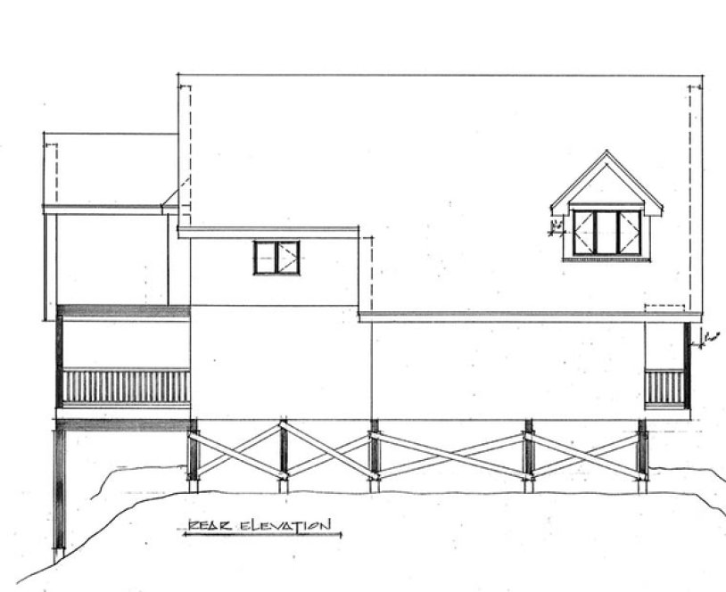
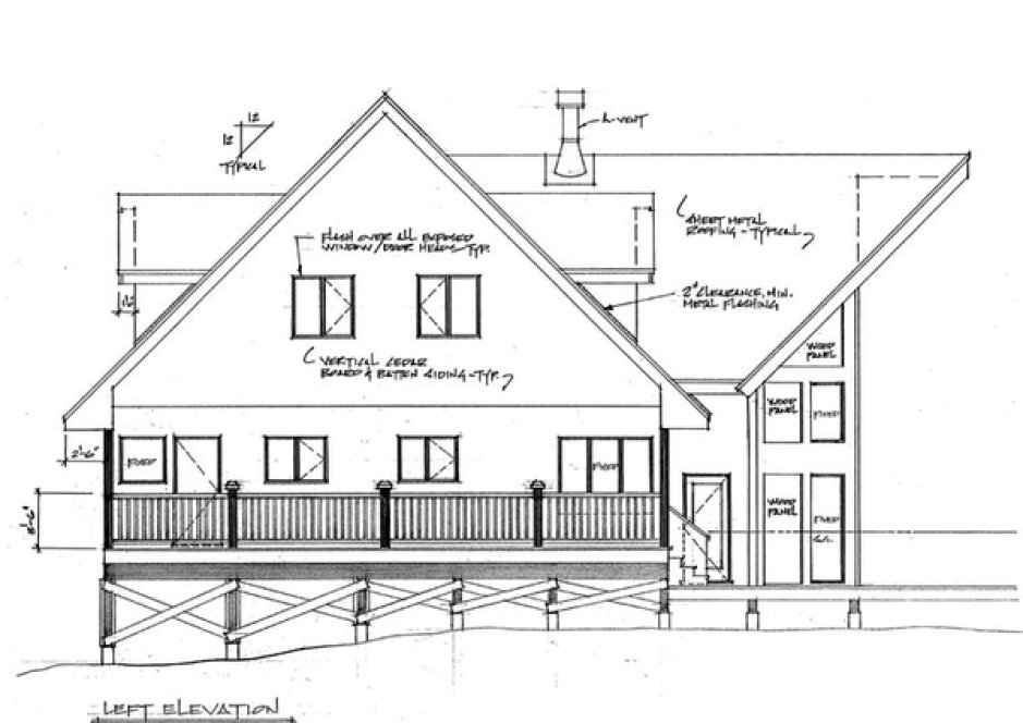
A six-bedroom lodge easily accommodates and encourages multifamily entertaining. The voluminous Lounge boasts a twenty-foot high open beamed ceiling with a centrally located warming wood stove. The towering front window wall captures all the available views. Raised above the Lounge floor level but separated only by a railing are the Library and the spacious Dining room. Numerous French door locations access the wrap-a-round multi-level decks for outdoor entertaining. A staircase hung from the ceiling beams allows access to the second level, where four guest suites share the two full bathrooms. Plans designed with a concrete pier and post foundation plan. The Bonus Area is not included in the Total Living Area Square Footage.
Specifications
Total 2682 sq ft
- Main: 1559
- Second: 1123
- Third: 0
- Loft/Bonus: 144
- Basement: 0
- Garage: 0
Rooms
- Beds: 6
- Baths: 3
- 1/2 Bath: 0
- 3/4 Bath: 0
Ceiling Height
- Main: 9'0
- Second: 8'0
- Third:
- Loft/Bonus:
- Basement:
- Garage:
Details
- Exterior Walls: 2x6
- Garage Type:
- Width: 56'0
- Depth: 48'0
Roof
- Max Ridge Height: 32'0
- Comments: (Main Floor to Peak)
- Primary Pitch: 12/12
- Secondary Pitch: 0/12
Add to Cart
Pricing
– westhomeplanners.com
– westhomeplanners.com
– westhomeplanners.com
– westhomeplanners.com
– westhomeplanners.com
– westhomeplanners.com
FRONT Elevation – westhomeplanners.com
[Back to Search Results]

833–493–0942





